Alto-Shaam 300-HWI/D443 handleiding
Handleiding
Je bekijkt pagina 12 van 45

MN-37234 (Rev. 0) 03/15 • Hot Food Drop-In Well • 10
INSTALLATION
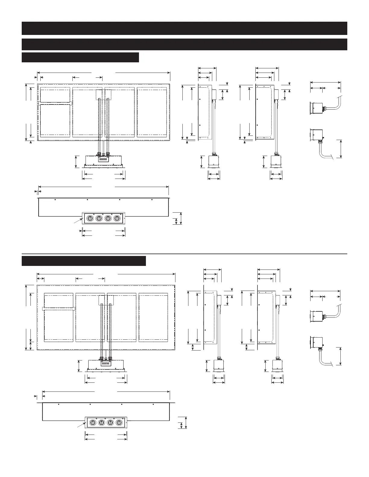
20-3/16" (512mm)
WELL
23-3/16" (588mm)
1-1/2"
(38mm)
4-13/16"
(122mm)
17-7/16" (442mm)
15-1/2" (394mm)
53-3/4" (1364mm)
1-5/16" (33mm) 12" (304mm)
WELL
52-3/4" (1339mm)
9/16" (13mm)
FLANGE
17-7/16" (442mm)
2-1/2" (62mm)
4-15/16" (125mm)
16-15/16" (429mm)1/4" (6mm)
400-HWI/D6
Ø 1/4" (5mm)
4-13/16"
(122mm)
4-15/16" (125mm)
4" (102mm)
4-1/8" (104mm)
1-7/8" (46mm)
22-1/16" (559mm)
20-3/16" (512mm)
WELL
5/8" (15mm) FLANGE
400-HWI/D6
9-5/16" (236mm)
7-9/16" (191mm)
6-3/8" (162mm)
WELL
4-13/16"
(122mm)
4-15/16" (125mm)
4" (102mm)
400-HWI/D4
7-5/16" (185mm)
5-9/16" (141mm)
4-3/8" (111mm)
WELL
22-1/16" (559mm)
20-3/16" (512mm)
WELL
5/8" (15mm) FLANGE
4-1/8" (104mm)
1-7/8" (46mm)
10-13/16" (274mm)
6"
(152mm)
4-13/16"
(122mm)
CONDUIT WHEN
EXITING BACK
6" (152mm)
CONDUIT WHEN
EXITING BOTTOM
DIMENSIONS
52-3/4" (1339mm)
2-5/16" (58mm)
FLANGE
2-1/2" (62mm)
4-15/16" (125mm)
17-7/16" (442mm)
16-15/16" (429mm)
400-HWILF/D6
Ø 1/4" (5mm)
400-HWILF/D6
9-5/16" (236mm)
7-9/16" (191mm)
6-3/8" (162mm)
WELL
22-1/16" (559mm)
20-3/16" (512mm)
WELL
2-1/2" (63mm) FLANGE
4-13/16"
(122mm)
4-15/16" (125mm)
4" (102mm)
4-1/8" (104mm)
1-7/8" (46mm)
57-5/16" (1455mm)
3-1/8" (79mm)
12" (304mm)
WELL
20-3/16" (512mm)
WELL
27-1/16" (686mm)
3-7/16"
(87mm)
4-13/16"
(122mm)
17-7/16" (442mm)
15-1/2" (394mm)
400-HWILF/D4
4-13/16"
(122mm)
4-15/16" (125mm)
4" (102mm)
4-1/8" (104mm)
1-7/8" (46mm)
7-5/16" (185mm)
5-9/16" (141mm)
4-3/8" (111mm)
WELL
22-1/16" (559mm)
20-3/16" (512mm)
WELL
2-1/2" (63mm) FLANGE
10-13/16" (274mm)
6"
(152mm)
4-13/16"
(122mm)
CONDUIT WHEN
EXITING BACK
6" (152mm)
CONDUIT WHEN
EXITING BOTTOM
400-HWILF/D4 & 400-HWILF/D6
400-HWI/D4 & 400-HWI/D6
Bekijk gratis de handleiding van Alto-Shaam 300-HWI/D443, stel vragen en lees de antwoorden op veelvoorkomende problemen, of gebruik onze assistent om sneller informatie in de handleiding te vinden of uitleg te krijgen over specifieke functies.
Productinformatie
| Merk | Alto-Shaam |
| Model | 300-HWI/D443 |
| Categorie | Niet gecategoriseerd |
| Taal | Nederlands |
| Grootte | 7955 MB |







