Alto-Shaam 1750-SK handleiding
Handleiding
Je bekijkt pagina 24 van 68

COMPONENTS
S imp le Co ntro l Cook & Hol d ▪ Servic e Ma nual ▪ MN-4 6713 ▪ Rev 1 ▪ 12/2 0
24
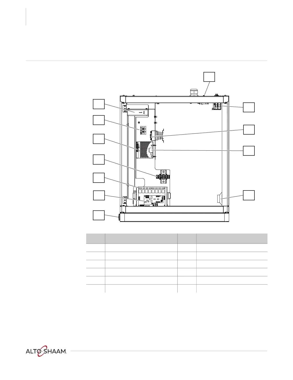
1250-TH/SK, 1750-TH/SK—Electrical
Component Identification
Ref. Description Ref. Description
1 USB port 7 Cooling fan
2 Daughter board 8 High limit switch(es)
3 Control board 9 Circuit breakers
4 Terminal blocks 10 Solid State Relay (SSR)
5 12VDC power supply 11 Voltage monitor
6 Terminal blocks (L1, GND, L2/N) 12 Speaker
TH-PHD-011527
9
10
12
8
4
5
1
2
3
11
6
7
Bekijk gratis de handleiding van Alto-Shaam 1750-SK, stel vragen en lees de antwoorden op veelvoorkomende problemen, of gebruik onze assistent om sneller informatie in de handleiding te vinden of uitleg te krijgen over specifieke functies.
Productinformatie
Merk | Alto-Shaam |
Model | 1750-SK |
Categorie | Oven |
Taal | Nederlands |
Grootte | 7175 MB |