Alto-Shaam 1750-SK handleiding
Handleiding
Je bekijkt pagina 23 van 68

COMPONENTS
Simp l e Cont rol Co ok & H o ld ▪ Se rvice Manua l ▪ MN -4 6 713 ▪ Re v 1 ▪ 1 2 /20
23
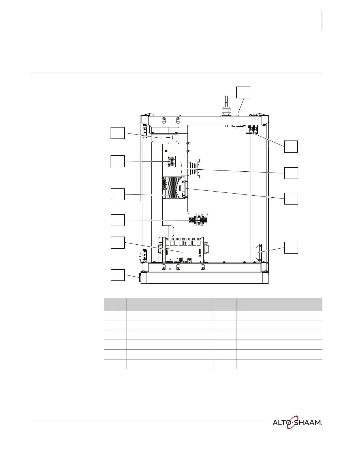
500-TH, 750-TH/SK, 1000-TH/SK—Electrical
Component Identification
Ref. Description Ref. Description
1 USB port 7 High limit switch
2 Control board 8 Circuit breakers
3 Terminal blocks 9 Solid State Relay (SSR)
4 12VDC power supply 10 Voltage monitor
5 Terminal blocks (L1, GND, L2/N) 11 Speaker
6 Cooling fan — —
TH-PHD-011524
8
9
11
7
4
5
1
2
3
10
6
Bekijk gratis de handleiding van Alto-Shaam 1750-SK, stel vragen en lees de antwoorden op veelvoorkomende problemen, of gebruik onze assistent om sneller informatie in de handleiding te vinden of uitleg te krijgen over specifieke functies.
Productinformatie
Merk | Alto-Shaam |
Model | 1750-SK |
Categorie | Oven |
Taal | Nederlands |
Grootte | 7175 MB |