Advantech PPC-324W-PN4 handleiding
Handleiding
Je bekijkt pagina 26 van 50

PPC-3150SW/3180SW/324W-PN4 User Manual
16
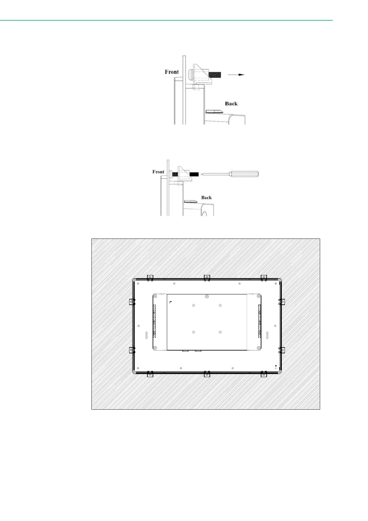
3. Insert the hook brackets into the mount holes in a downwards direction (as
shown in Figure 2.9). Then hang the panel PC.
Figure 2.5 Hook Bracket Location
4. Tighten the screws in the hook brackets to secure the panel PC in place.
Figure 2.6 Fastening Hook Bracket Screws
Figure 2.7 Panel Mount Rear View
Bekijk gratis de handleiding van Advantech PPC-324W-PN4, stel vragen en lees de antwoorden op veelvoorkomende problemen, of gebruik onze assistent om sneller informatie in de handleiding te vinden of uitleg te krijgen over specifieke functies.
Productinformatie
Merk | Advantech |
Model | PPC-324W-PN4 |
Categorie | Niet gecategoriseerd |
Taal | Nederlands |
Grootte | 9304 MB |