Handleiding
Je bekijkt pagina 8 van 60

8
Treviso Use, Care, and Installation Guide
TREVISO
DOWNDRAFT
CORE
Installation Instructions
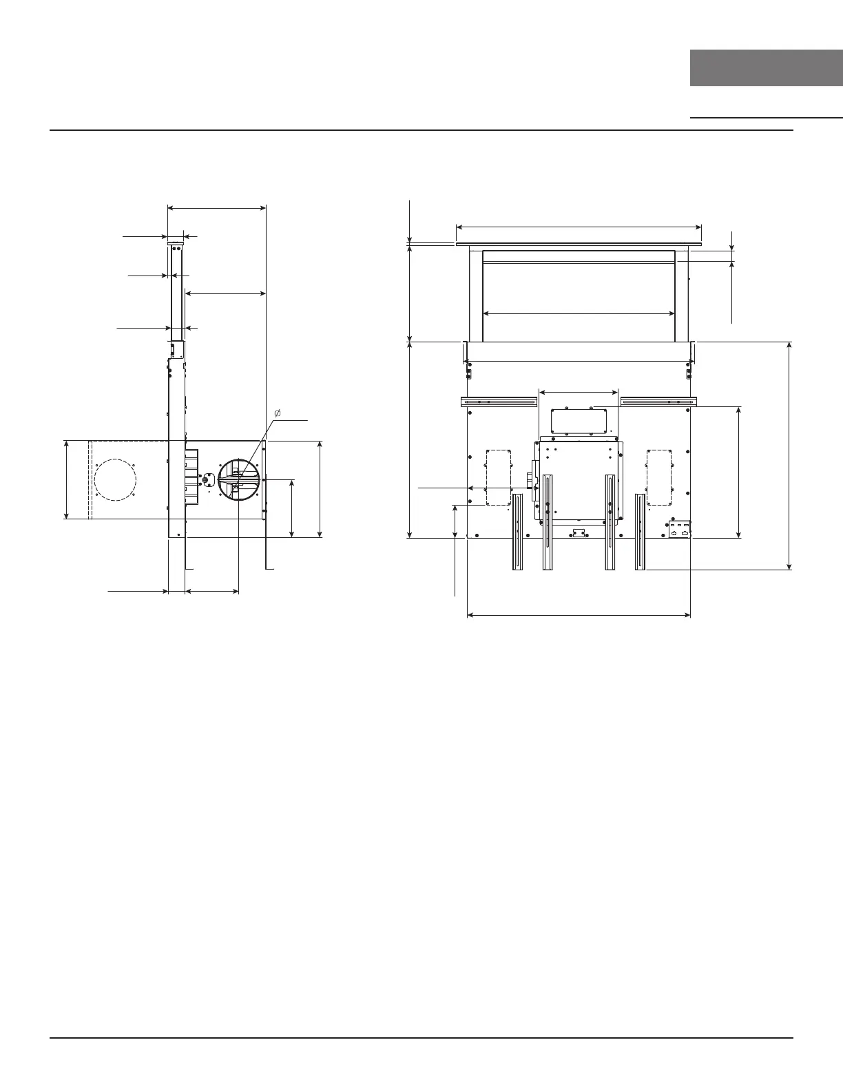
Hood Specications
2-
5/16
”
1/2”
2-
1/8
”
6”
11-
9/16
”
8-
7/16
”
14-
1/8
”
FRONT
2-
5/8
” 7-
7/8
”
SIDE VIEW
11-
9/16
”
14-
1/2
”
(30”) 29-
15/16
”, (36”) 35-
15/16
”
14-
1/8
”
3/8”
(30”) 22-
3/16
”, (36”) 28-
3/16
”
1-
9/16
”
(30”) 27-
15/16
”, (36”) 33-
15/16
”
Height Adjustability
Min: 28-
1/2
” Max: 37”
19-
1/4
”
28-
13/16
”
(30”) 26-
7/8
”, (36”) 32-
7/8
”
10-
5/8
”
4-
7/8
”
FRONT VIEW
11-
3/4
”
Bekijk gratis de handleiding van Zephyr Treviso ZTV-E36AS, stel vragen en lees de antwoorden op veelvoorkomende problemen, of gebruik onze assistent om sneller informatie in de handleiding te vinden of uitleg te krijgen over specifieke functies.
Productinformatie
| Merk | Zephyr |
| Model | Treviso ZTV-E36AS |
| Categorie | Afzuigkap |
| Taal | Nederlands |
| Grootte | 7338 MB |



