Handleiding
Je bekijkt pagina 11 van 68

11
Tornado II & Tornado III Use, Care, and Installation Guide
ZEPHYRONLINE.COM
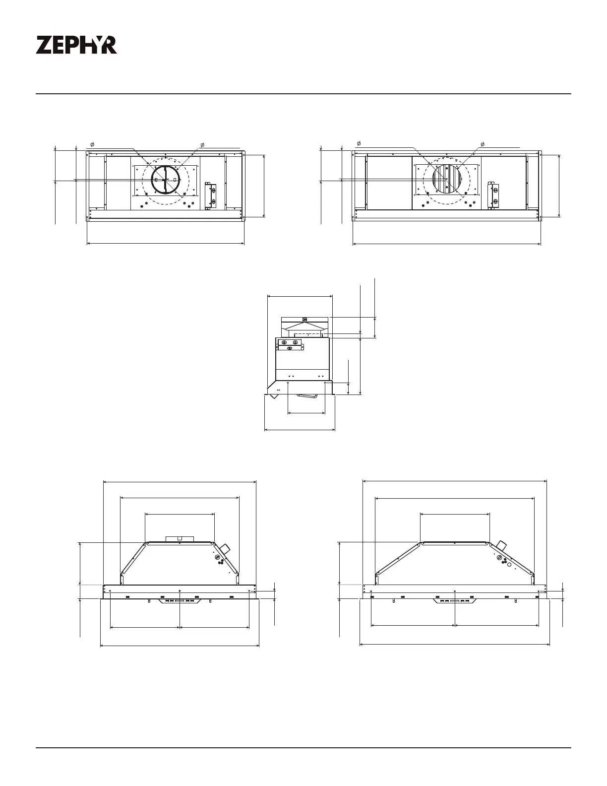
Installation Instructions
Hood Specications
(27”) 26-3/16”, (34”) 32-5/8”
25-
1/4”
(27”) 27-
5/16”, (34”) 33-3/4”
9-1/16”
2-
15/16”
14-3/4”
(27”) 11-5/16” ***
(34”) 14-
3/4” ***
1-3/8”
(27”) 11-5/16” ***
(34”) 14-
3/4” ***
*** Mounting holes measurements from rear
(27”) 26-
13/16”
(34”) 33-
1/4”
9-
15/16” **
13-3/16”
4-
5/16” **
2-
1/2”
12”
7-7/8”
13-
13/16”
14-
15/16”
6-3/8” **
13-
3/16”
9-15/16” **
39-
13/16”
14-3/4”
9-1/16”
2-
15/16”
1-3/8”
17-3/4” *** 17-
3/4” ***
40-
1/4”
39-
1/8”
33-
13/16”
AK82 Top View
AK82 Front View AK83 Front View
AK83 Top View
AK82 & AK83
Side View
5-7/8” *
5-7/8” *
6-1/8” *
* 6” Round Ducting
** 10” Round Ducting
1-1/16” *
6-3/8” **
6-1/8” *
NOTE: AK82 includes a single blower with 6” ducting preinstalled. A 10” transition is available, but is
only available with the PBD-1000A dual internal blower kit.
Bekijk gratis de handleiding van Zephyr Tornado II AK8234AS, stel vragen en lees de antwoorden op veelvoorkomende problemen, of gebruik onze assistent om sneller informatie in de handleiding te vinden of uitleg te krijgen over specifieke functies.
Productinformatie
| Merk | Zephyr |
| Model | Tornado II AK8234AS |
| Categorie | Afzuigkap |
| Taal | Nederlands |
| Grootte | 8601 MB |



