Yamato R32 YC48T1T handleiding

38 pagina's
PDF beschikbaar

Handleiding

Je bekijkt pagina 27 van 38
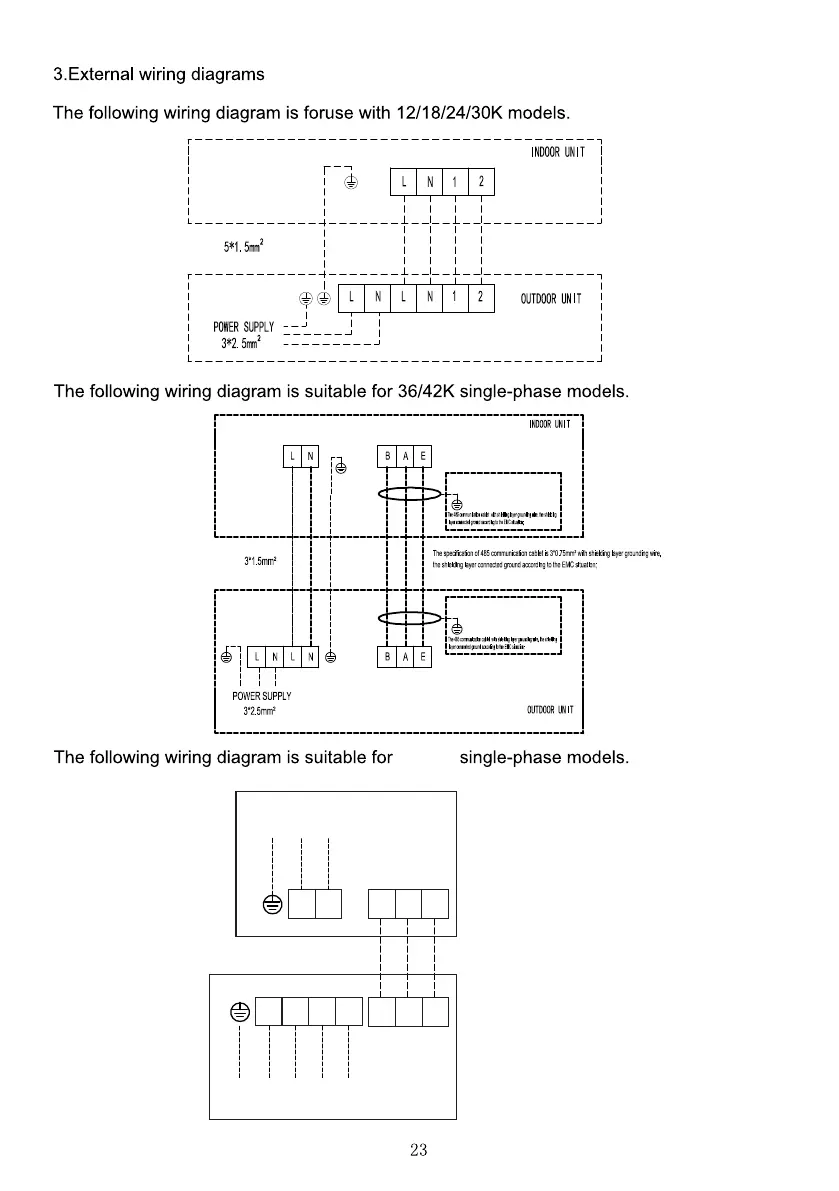
L
N
B
A E
TB1
POWER
SUPPLY
INDOOR UNIT
3*1.0mm
2
B
A E
L1
L2 L3 L3
TB2
POWER
SUPPLY
5*2.5mm
2
3*0.5mm (Signal cable with shield)
2
OUTDOOR UNIT
48/55K

Bekijk gratis de handleiding van Yamato R32 YC48T1T, stel vragen en lees de antwoorden op veelvoorkomende problemen, of gebruik onze assistent om sneller informatie in de handleiding te vinden of uitleg te krijgen over specifieke functies.

Productinformatie

MerkYamato
ModelR32 YC48T1T
CategorieAirco
TaalNederlands
Grootte3862 MB