Handleiding
Je bekijkt pagina 19 van 38

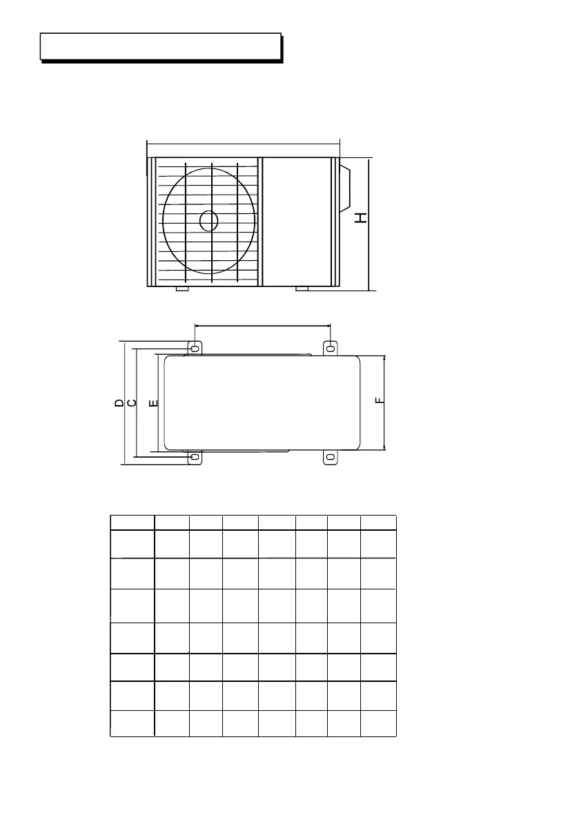
Split type outdoor unit
B
MODE
D
E
F
H
350
3
07
321
605
A
Pipe dimension and ways of installation
Allowed length and height drop
Please refer to refrigerant pipe connection for detail
。
Outdoor pipe dimension and ways of install (in sequence of cooling capacity
)
Outdoor Unit
Indoor Unit
Longest PipeL
Oil Return
Remove objects and water
Additional refrigerant charge
Liquid pipe diameter
Additional charge for 1m pipe(R410A)
Before instal ling refrigerant pipe, please clean the pipe in case of foreign objects.
Use high-pressure nitrogen to clean the pipe instead of outdoor refrigerant.
The additional charge is base on the diameter and length of outlet/inlet liquid type .
This AC has been charged with that for 5m pipe, those beyond 5 m should recharge as follows.
1/4
φ ″
0.022kg
0.054kg
1/2
φ ″
0.110Kg
Additional charge for 1m pipe(R22)
0.030kg 0.060kg
0.120Kg
REFRIGERANT PIPE INSTALLATION
Copper Pipe for Air ConditionerPipe Material
Size(mm)
Gas side
Liquid side
Model
18K
24K
36/42K
6.35(7/16inch)
9.52(5/8inch)
12.7(3/4 inch)
6.35(7/16inch)
15.88(7/8inch)
9.52(5/8inch)
Allowed value
Longest pipe (L)
50m
30m
Height drop between indoor
and outdoor unit H
Maximum
height drop
Conventional pipe, cooling capacity 48000Btu/h
≥
Allowed value
Longest pipe(L)
30m
15m
Height drop between indoor
and outdoor unit
Maximum
height drop
Conventional pipe, cooling capacity18000~36000Btu/h
3/8
φ ″
A B C
780 516 314
845 574 348
375
342
358 700
Figure of body size
Additional charge for 1m pipe(R22)
0.016kg
0.040kg
0.096Kg
Unit:
910 607 390 421
910 607 390 421
378 804
378 804
mm
436 858
436
1010 660 462 494
1010 660 462 494
391
391
440
440
858
15
845 574 348
375
342
358 700
12/18K
24K
30K
36K
48K
42K
55K
Bekijk gratis de handleiding van Yamato R32 YC48T1T, stel vragen en lees de antwoorden op veelvoorkomende problemen, of gebruik onze assistent om sneller informatie in de handleiding te vinden of uitleg te krijgen over specifieke functies.
Productinformatie
Merk | Yamato |
Model | R32 YC48T1T |
Categorie | Airco |
Taal | Nederlands |
Grootte | 3862 MB |