Wolkenstein WKG456ENFDIX handleiding

101 pagina's
PDF beschikbaar

Handleiding

Je bekijkt pagina 66 van 101
~ 66 ~
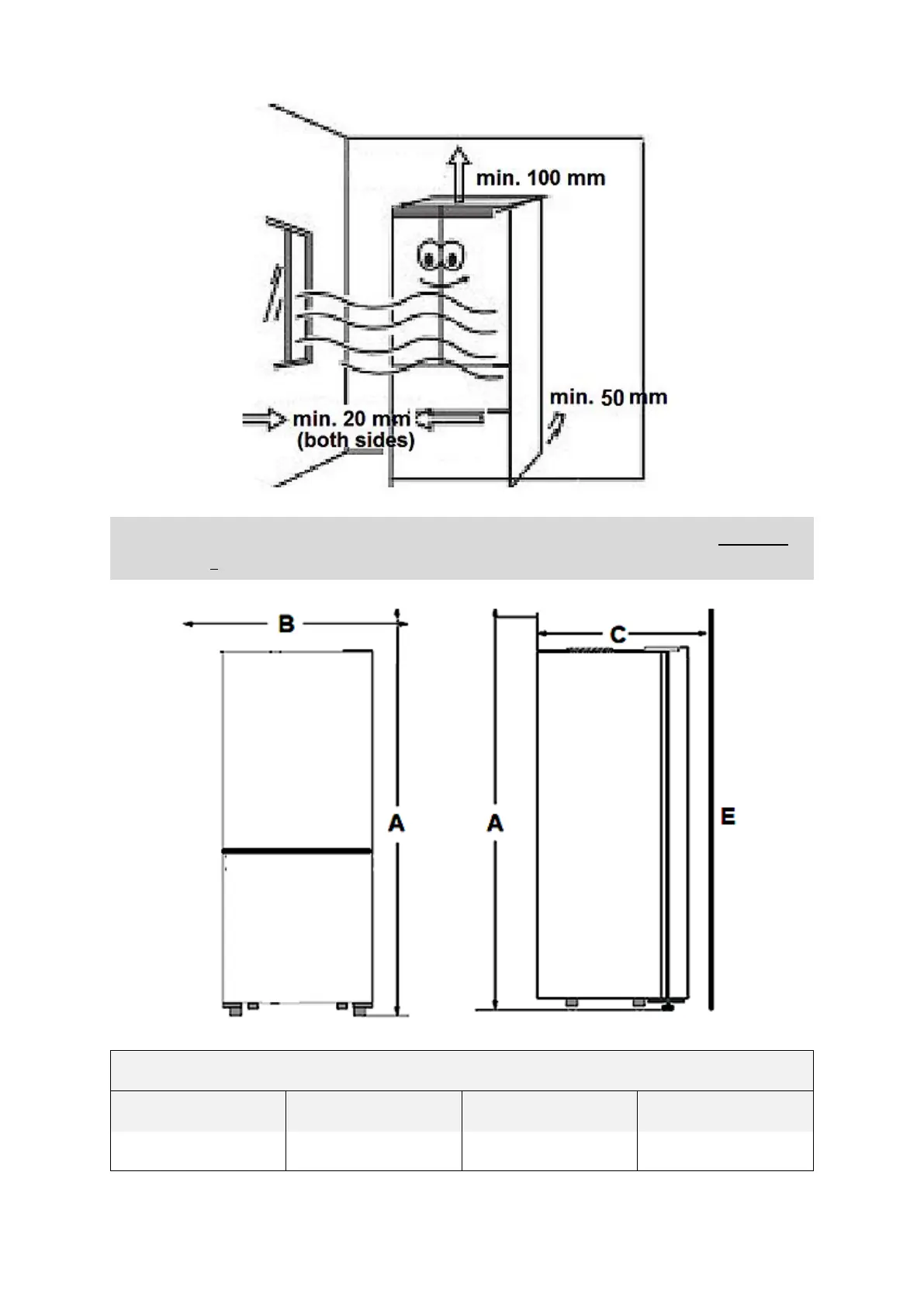
SPACE REQUIREMENT OF THE APPLIANCE WHEN THE DOORS ARE CLOSED
(INCL. MINIMUM DISTANCES FOR PROPER VENTILATION)
A = HEIGHT / B = WIDTH / C = DEPTH
A
B
C
E
Min 2010 mm
min. 595 mm
min. 680 mm
Wall

Bekijk gratis de handleiding van Wolkenstein WKG456ENFDIX, stel vragen en lees de antwoorden op veelvoorkomende problemen, of gebruik onze assistent om sneller informatie in de handleiding te vinden of uitleg te krijgen over specifieke functies.

Productinformatie

MerkWolkenstein
ModelWKG456ENFDIX
CategorieKoelkast
TaalNederlands
Grootte15624 MB