Wolf IR48751 handleiding

28 pagina's
PDF beschikbaar

Handleiding

Je bekijkt pagina 15 van 28
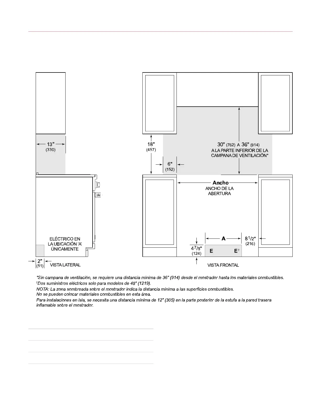
Especificaciones
Instalación
ANCHO DE LA
ABERTURA
ANCHO A
Estufade30” 30”(762)
10
1
/
4
”(260)
Estufade36” 36”(914)
16
1
/
4
”(413)
Estufade48” 48”(1219)
18
1
/
4
”(464)
wolfappliance.com | 6

Bekijk gratis de handleiding van Wolf IR48751, stel vragen en lees de antwoorden op veelvoorkomende problemen, of gebruik onze assistent om sneller informatie in de handleiding te vinden of uitleg te krijgen over specifieke functies.

Productinformatie

MerkWolf
ModelIR48751
CategorieFornuis
TaalNederlands
Grootte2599 MB