Handleiding
Je bekijkt pagina 11 van 45

vMON-Series
Page 11
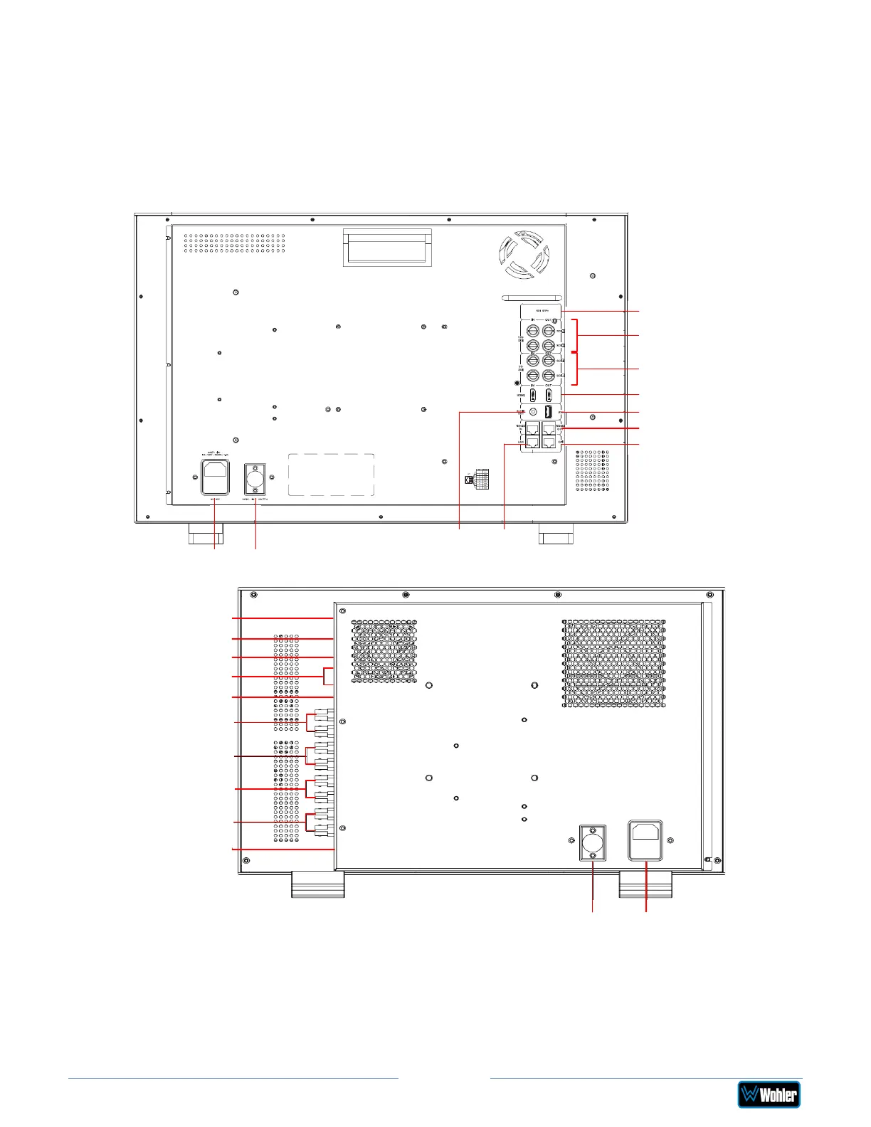
Rear Panel
A typical vMON Rear Panels are shown in Figure 2-2. The number and type of
connections on each Rear Panel may vary according to the features of each model.
Figure 2-2: Typical vMON Series Rear Panels
SDI SFP +
12G SDI In/Out
LAN
HDMI In
RS 422 In/Out
GPI
DC
Power
AC
Power
12G SDI In/Out
12G SDI In/Out
12G SDI In/Out
Audio Out
AC
Power
DC
Power
SDI SFP +
12G SDI In/Out
3G SDI In/Out
HDMI In/Out
USB
RS 422 In/Out
GPI
LAN
Audio
Out
1. AC Power: The monitor receives power from the AC inlet, which is a standard IEC
receptacle for 100 to 240 VAC ±10%, 50/60 Hz power connection, and includes a
Power Switch. Normally the Power switch is kept in the “1” (On) position and the
operation of the monitor is controlled from the front panel controls. Four regional
AC power cords, supplied according to shipping region, are available.
Bekijk gratis de handleiding van Wohler vMON-3280W-3G, stel vragen en lees de antwoorden op veelvoorkomende problemen, of gebruik onze assistent om sneller informatie in de handleiding te vinden of uitleg te krijgen over specifieke functies.
Productinformatie
| Merk | Wohler |
| Model | vMON-3280W-3G |
| Categorie | Monitor |
| Taal | Nederlands |
| Grootte | 5921 MB |





