Handleiding
Je bekijkt pagina 48 van 84

48
FR
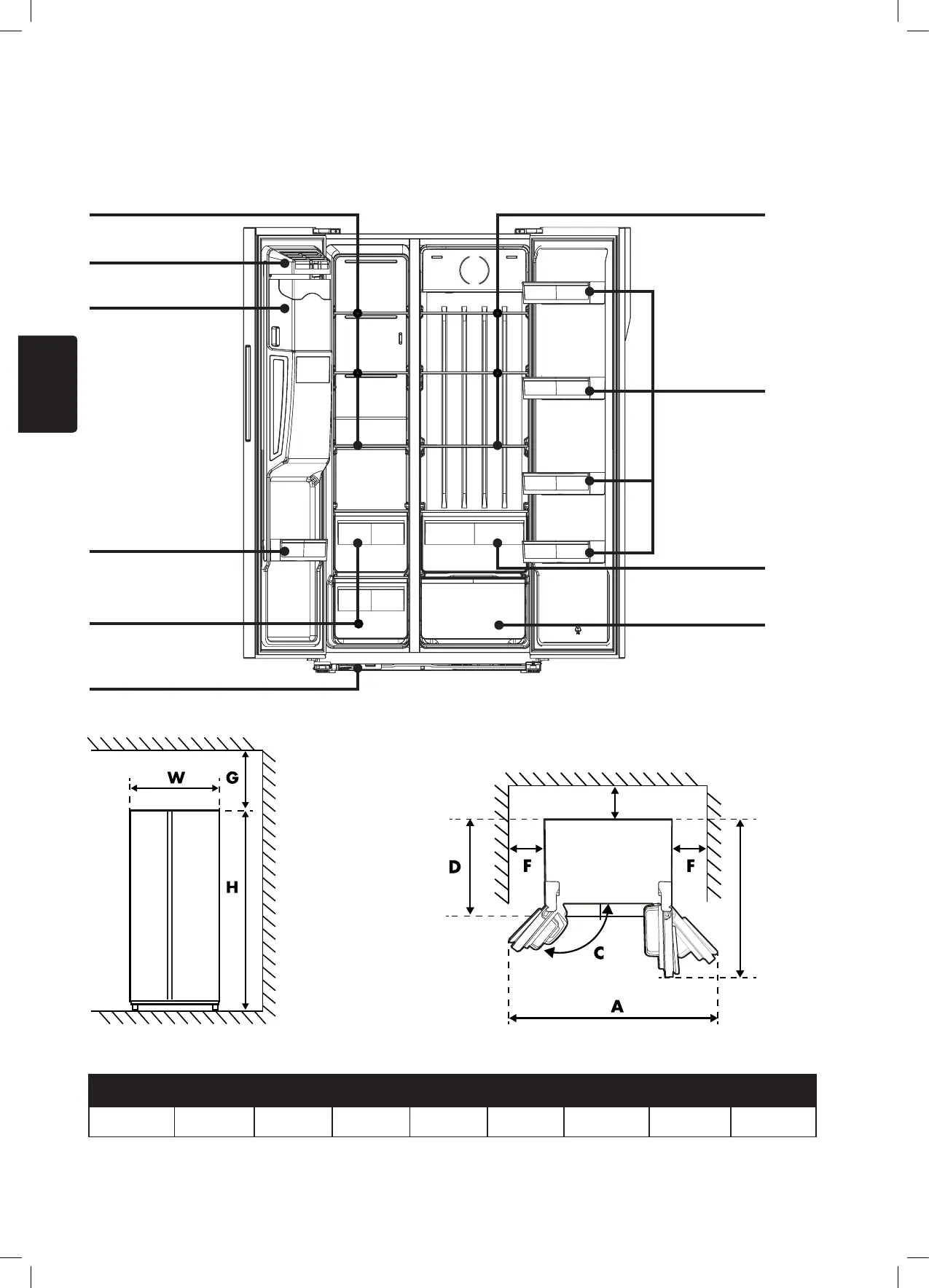
2.1 DIMENSIONS
• Illustration1. Vue de face
• Illustration2. Vue du dessus
2. CARACTÉRISTIQUES DE PRODUIT
Plateaux congélateur Plateaux réfrigérateur
Bac à légumes
Bacs de porte
Bac de porte
B
E
*L’illustration 1 et l’illustration 2 montrent uniquement l’espace nécessaire à l’appareil.
W D H A B C(°) E F G
91cm 73cm 177cm 190cm 160cm 135 min. 5cm min. 5cm min. 5cm
Machine à glaçons
Tiroirs de congélation
Stockage de glace
Connecteur de tuyau d’eau
Zone à température
variable
Bekijk gratis de handleiding van Wisberg WBSBSWID576DZ, stel vragen en lees de antwoorden op veelvoorkomende problemen, of gebruik onze assistent om sneller informatie in de handleiding te vinden of uitleg te krijgen over specifieke functies.
Productinformatie
| Merk | Wisberg |
| Model | WBSBSWID576DZ |
| Categorie | Koelkast |
| Taal | Nederlands |
| Grootte | 9617 MB |







