Handleiding
Je bekijkt pagina 61 van 76

61
DE
2 PRODUKTEIGENSCHAFTEN
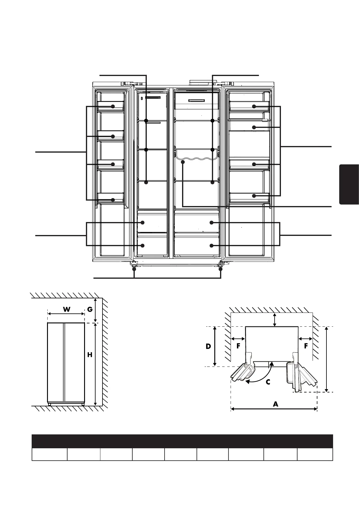
2.1 MAßE
• Abbildung 1. Vorderansicht • Abbildung 2. Draufsicht
*1 und Abbildung 2 veranschaulichen lediglich den für das Gerät benötigten Platz
Ablagen frierregale
Ablagen Kühlschrank
Gemüseschublade
Stellfüße
Gefrierfächer
Türfächer
Türfächer
B
E
W D H A B C(°) E F G
91cm 69,8cm 179,3cm 147cm 97cm 125±5 min. 10cm min. 10cm min. 30cm
Flaschenregal
Bekijk gratis de handleiding van Wisberg WBSBS179AB, stel vragen en lees de antwoorden op veelvoorkomende problemen, of gebruik onze assistent om sneller informatie in de handleiding te vinden of uitleg te krijgen over specifieke functies.
Productinformatie
| Merk | Wisberg |
| Model | WBSBS179AB |
| Categorie | Vriezer |
| Taal | Nederlands |
| Grootte | 6222 MB |







