Handleiding
Je bekijkt pagina 8 van 84

8
NL
2. PRODUCTEIGENSCHAPPEN
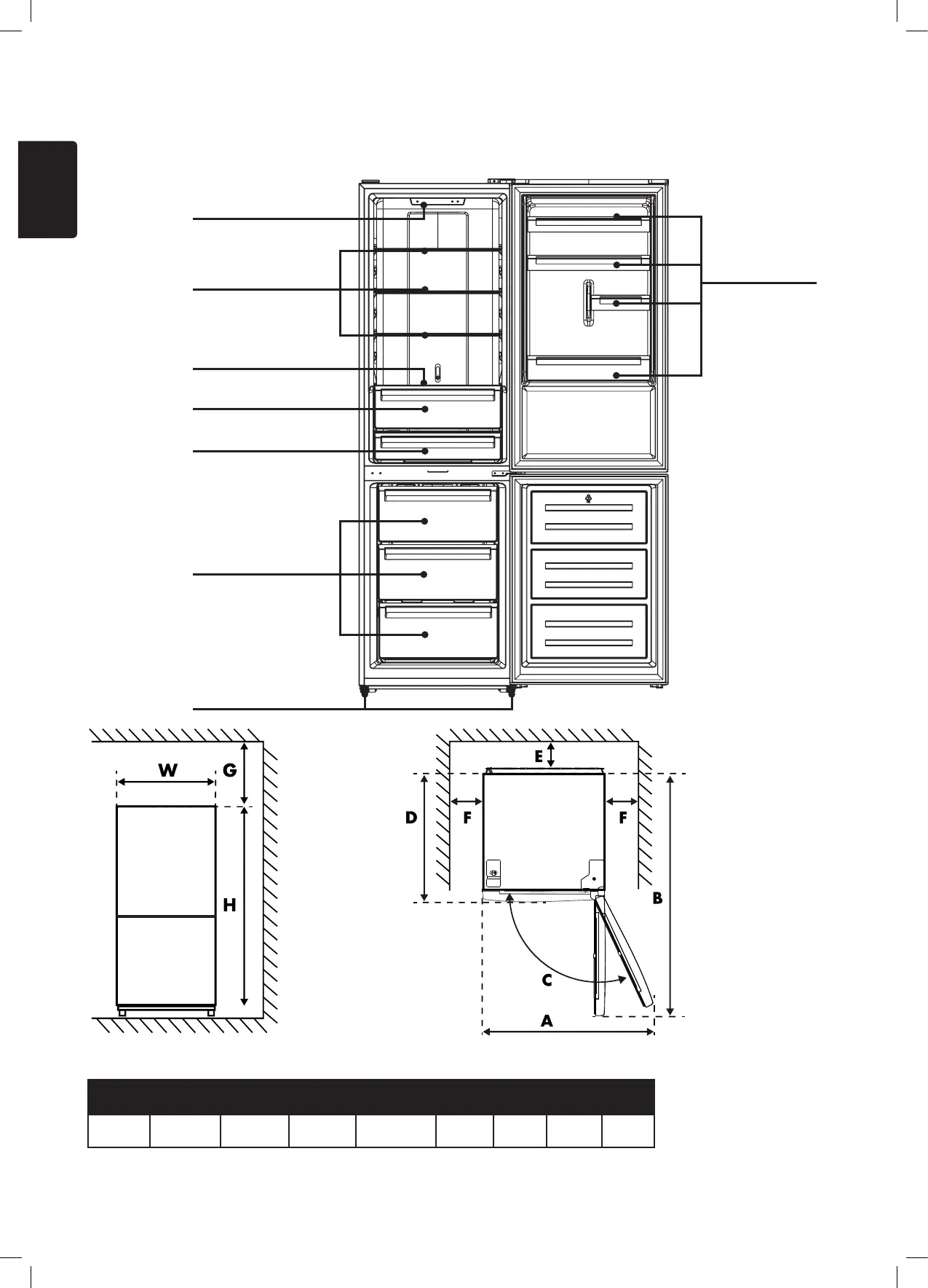
2.1 AFMETINGEN
W D H A B C(°) E F G
60cm 68,5cm 185cm 120cm 128,5cm 135 5cm 5cm 5cm
• Figuur 1. Vooraanzicht • Figuur 2. Bovenaanzicht
*Figuur 1 en guur 2 illustreren de ruimte die nodig is voor het toestel.
Deurvakken
Thermostaat
Koelkast planken
Deksel groentelade
Vrieslades
Groentelade
Verse Multi zone
Stelpoten
Bekijk gratis de handleiding van Wisberg WBKVC185CNFZ, stel vragen en lees de antwoorden op veelvoorkomende problemen, of gebruik onze assistent om sneller informatie in de handleiding te vinden of uitleg te krijgen over specifieke functies.
Productinformatie
Merk | Wisberg |
Model | WBKVC185CNFZ |
Categorie | Koelkast |
Taal | Nederlands |
Grootte | 7993 MB |