Handleiding
Je bekijkt pagina 8 van 76

8
NL
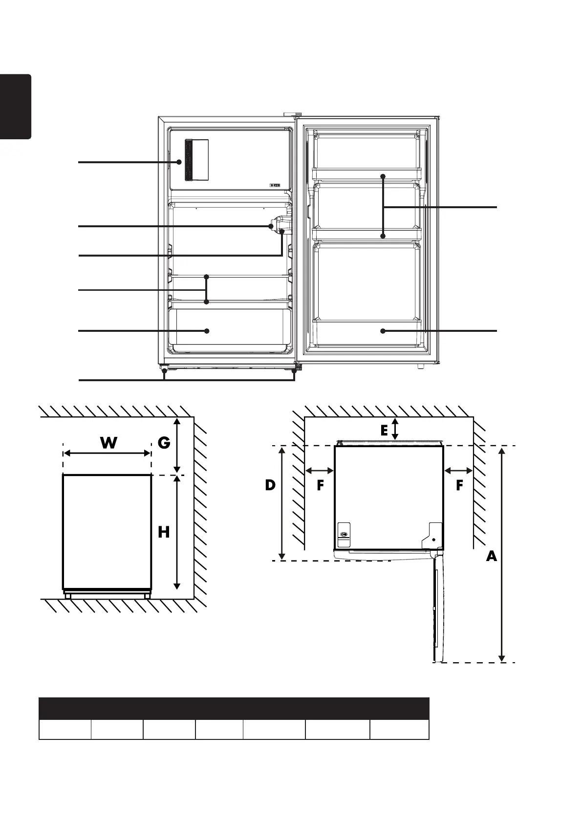
2. PRODUCTEIGENSCHAPPEN
2.1 AFMETINGEN
Groentelade
Thermostaatknop
Lamp
Vriezer deur
Koelkastplanken
Stelpoten
Flessenhouder
Deurvakken
W D H A E F G F G
47,5cm 44,5cm 84,5cm 92,1cm min. 10cm min. 10cm min. 10cm min. 10cm min. 10cm
• Figuur 1. Vooraanzicht
• Figuur 2. Bovenaanzicht
*Figuur 1 en guur 2 illustreren de ruimte die nodig is voor het toestel.
Bekijk gratis de handleiding van Wisberg WBKV48DW, stel vragen en lees de antwoorden op veelvoorkomende problemen, of gebruik onze assistent om sneller informatie in de handleiding te vinden of uitleg te krijgen over specifieke functies.
Productinformatie
| Merk | Wisberg |
| Model | WBKV48DW |
| Categorie | Vriezer |
| Taal | Nederlands |
| Grootte | 6161 MB |







