Handleiding
Je bekijkt pagina 8 van 72

8
NL
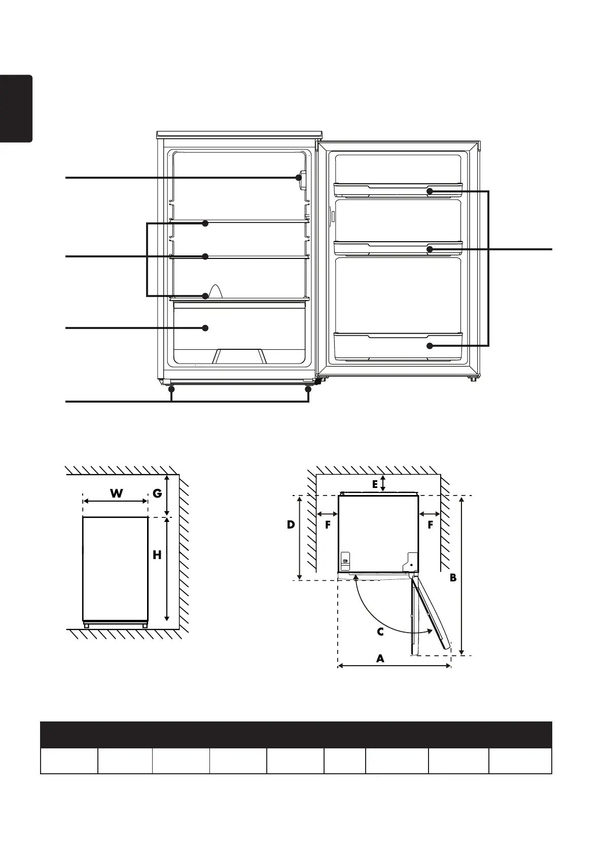
2. PRODUCTEIGENSCHAPPEN
• Figuur 1. Vooraanzicht • Figuur 2. Bovenaanzicht
*Figuur 1 en guur 2 illustreren de ruimte die nodig is voor het toestel.
2.1 AFMETINGEN
Thermostaatknop
Groentelade
Stelpoten
Deurvakken
Koelkast planken
W D H A B C(°) E F G
55,3cm 57,4cm 84,5cm 93,5 cm 96cm 135 min. 7,5cm min. 10cm min. 10cm
Bekijk gratis de handleiding van Wisberg WBKK55DW, stel vragen en lees de antwoorden op veelvoorkomende problemen, of gebruik onze assistent om sneller informatie in de handleiding te vinden of uitleg te krijgen over specifieke functies.
Productinformatie
| Merk | Wisberg |
| Model | WBKK55DW |
| Categorie | Vriezer |
| Taal | Nederlands |
| Grootte | 5901 MB |







