Handleiding
Je bekijkt pagina 63 van 76

63
DE
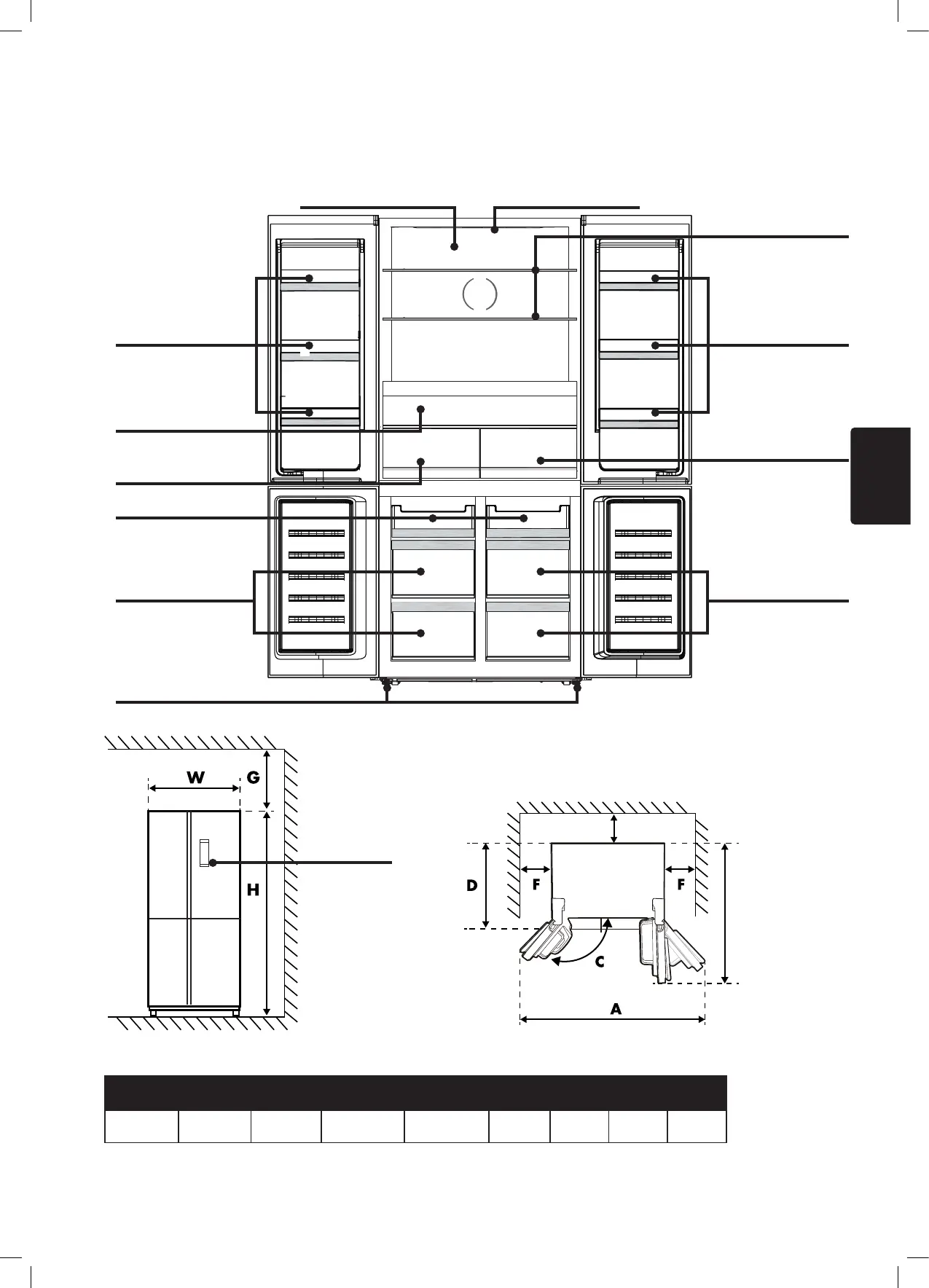
2   PRODUKTEIGENSCHAFTEN
TürfächerTürfächer
Gefrierschrank-
Schubladen
Convertible zone
•  Abbildung 1. Vorderansicht •  Abbildung 2. Draufsicht
*1 und Abbildung 2 veranschaulichen lediglich den für das Gerät benötigten Platz
LED-Lampe
2.1 MAßE
Ablagen im Kühlschrank
Null-Stern-Zone
Schiebetablett
Nivellierfüße
Schublade für hohe 
Luftfeuchtigkeit
Schublade für 
Obst und Gemüse
Metall-Luftkanal
B
E
W D H A B C(°) E F G
90,5cm 67,3cm 190cm 151,5cm 106,2cm 130o ≥5cm ≥5cm ≥5cm
Display
Bekijk gratis de handleiding van Wisberg WBCDND522CB, stel vragen en lees de antwoorden op veelvoorkomende problemen, of gebruik onze assistent om sneller informatie in de handleiding te vinden of uitleg te krijgen over specifieke functies.
Productinformatie
| Merk | Wisberg | 
| Model | WBCDND522CB | 
| Categorie | Koelkast | 
| Taal | Nederlands | 
| Grootte | 6429 MB | 







