Handleiding
Je bekijkt pagina 45 van 76

45
FR
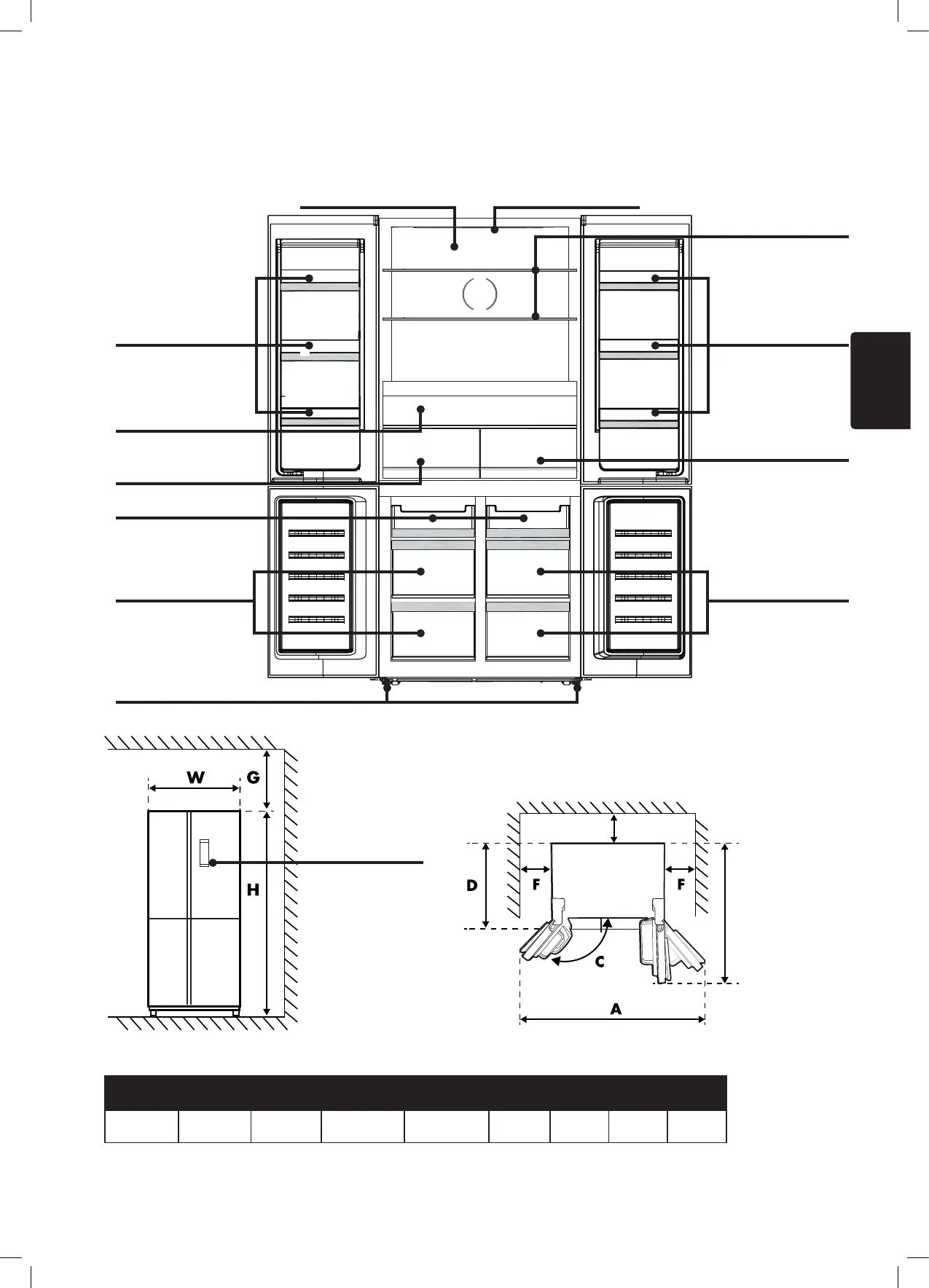
2.1 DIMENSIONS
• Illustration1. Vue de face • Illustration2. Vue du dessus
2. CARACTÉRISTIQUES DE PRODUIT
*L’illustration 1 et l’illustration 2 montrent uniquement l’espace nécessaire à l’appareil.
Bacs de porte
Plateaux réfrigérateur
Convertible zone
Tiroirs de
congélation
Zone zéro étoile
Lumière LED
Plateaux coulissants
Pieds de réglage
Tiroir à forte humidité
Bacs de porte
Tiroir à fruits et
légumes
Conduit d’air métallique
B
E
W D H A B C(°) E F G
90,5cm 67,3cm 190cm 151,5cm 106,2cm 130o ≥5cm ≥5cm ≥5cm
Écran d’afchage
Bekijk gratis de handleiding van Wisberg WBCDND522CB, stel vragen en lees de antwoorden op veelvoorkomende problemen, of gebruik onze assistent om sneller informatie in de handleiding te vinden of uitleg te krijgen over specifieke functies.
Productinformatie
Merk | Wisberg |
Model | WBCDND522CB |
Categorie | Koelkast |
Taal | Nederlands |
Grootte | 6429 MB |