Handleiding
Je bekijkt pagina 35 van 64

35
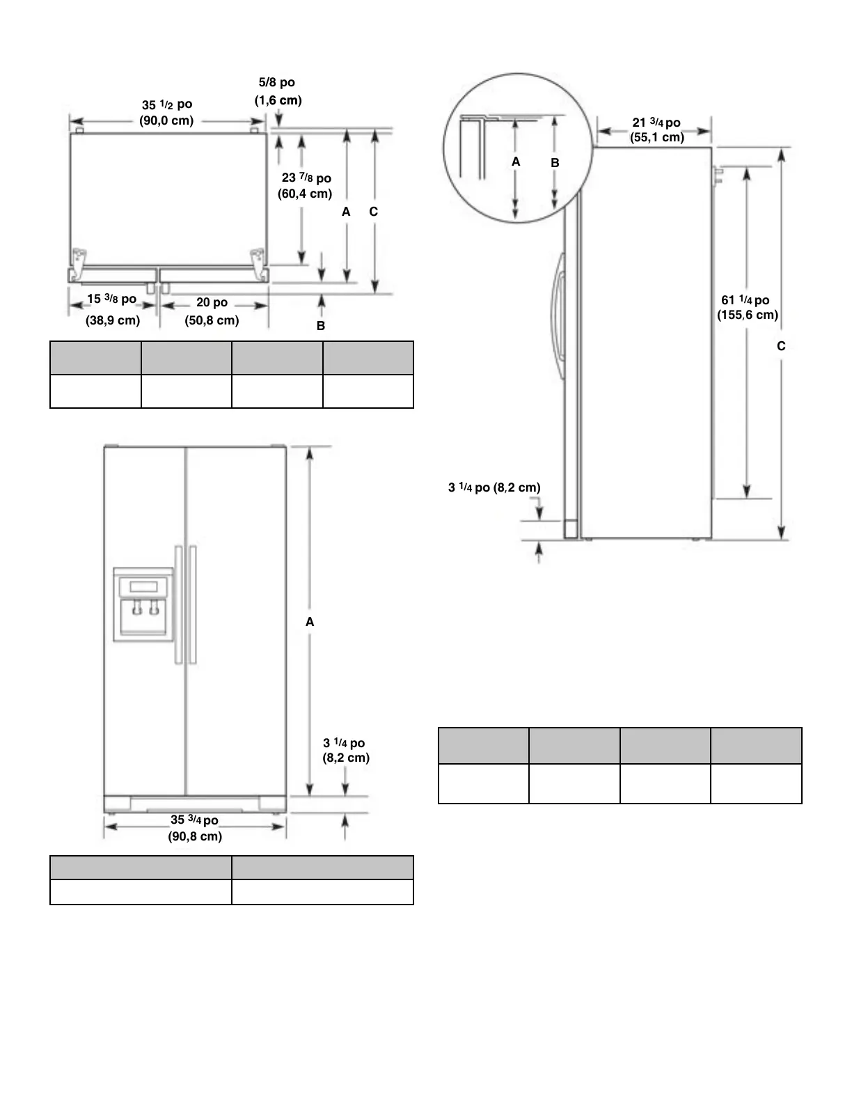
Dimensions du produit – Vue de dessus
35
1
/
2
(90,0 cm)
23
7
/
8
(60,
4 cm)
15
3
/
8
(38,9 cm)
A
B
C
5/8 po
(1,6 cm6 cm)
20 po
(50,8 cm)
po
po
po
Style de
porte
Profondeur A Profondeur B Profondeur C
Incurvée 28
5
/
8
po
(72,7 cm)
2
5
/
8
po
(6,7 cm)
31
1
/
8
po
(79,1 cm)
Dimensions du produit – Vue avant
35
3
/
4
(90,
8 cm)
3
1
/
4
(8,2 cm)
A
po
po
Taille du modèle Hauteur A
69 po 65
3
/
4
po (167,0 cm)
Dimensions du produit – Vue latérale
21
3
/
4
(55,
1 cm)
61
1
/
4
(155,6 cm)
3
1
/
4
(8,2 cm)
C
A
B
po
po
po
� Les dimensions de hauteur sont illustrées avec les pieds de
nivellement déployés à la hauteur minimale de 1/4 po
(6,35 mm) sous le réfrigérateur.
REMARQUE : Lorsque les pieds de nivellement sont
totalement déployés de 1 po (25 mm) au-dessous du
réfrigérateur, ajouter 3/4 po (19 mm) à la hauteur totale.
� La longueur du cordon d’alimentation est de 61
1
/
4
po
(155,6 cm).
� La canalisation d’eau fixée à l’arrière du réfrigérateur mesure
78 po (198,1 cm) de long.
Taille du
modèle
Hauteur A Hauteur B Hauteur C
69 po 68
7
/
8
po
(174,9 cm)
68
7
/
8
po
(174,9 cm)
68
1
/
2
po
(174,0 cm)
Bekijk gratis de handleiding van Whirlpool WRSF5536RB, stel vragen en lees de antwoorden op veelvoorkomende problemen, of gebruik onze assistent om sneller informatie in de handleiding te vinden of uitleg te krijgen over specifieke functies.
Productinformatie
Merk | Whirlpool |
Model | WRSF5536RB |
Categorie | Koelkast |
Taal | Nederlands |
Grootte | 14648 MB |