Handleiding
Je bekijkt pagina 34 van 56

34
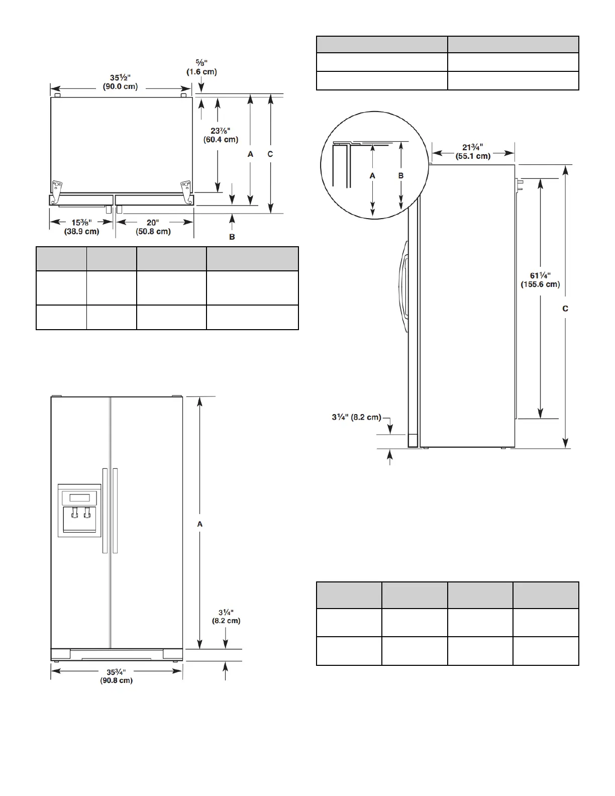
Dimensions du produit – Vue de dessus
Style de
porte
Profon-
deur A
Profondeur B Profondeur C
Plate 27 1/2 po
(69,9 cm)
Maximum de
2 5/8 po
(6,7 cm)*
Maximum de 30 po
(76,2 cm)*
Incurvée 28 5/8 po
(72,7 cm)
2 5/8 po
(6,7 cm)
31 1/8 po (79,1 cm)
Les dimensions peuvent varier en fonction du type de poignée de
porte.
La profondeur pour utilisation de la poignée la plus profonde est
indiquée.
Dimensions du produit – Vue avant
Taille du modèle Hauteur A
69 po 65 3/4 po (167,0 cm)
72 po 68 1/8 po (173,0 cm)
Dimensions du produit – Vue latérale
� Les dimensions de hauteur sont illustrées avec les pieds de
nivellement déployés à la hauteur minimale de 1/4 po
(6,35 mm) sous le réfrigérateur.
REMARQUE: Lorsque les pieds de nivellement sont
totalement déployés de 1 po (25 mm) au-dessous du
réfrigérateur, ajouter 3/4 po (19 mm) à la hauteur totale.
� La longueur du cordon d’alimentation est de 61 1/4 po
(155,6 cm).
� La canalisation d’eau fixée à l’arrière du réfrigérateur mesure
78 po (198,1 cm) de long.
Taille du
modèle
Hauteur A Hauteur B Hauteur C
69 po 68 7/8 po
(174,9 cm)
68 7/8 po
(174,9 cm)
68 1/2 po
(174,0 cm)
72 po 71 1/4 po
(181,0 cm)
71 1/4 po
(181,0 cm)
71 po
(180,3 cm)
Bekijk gratis de handleiding van Whirlpool WRS315SNBK, stel vragen en lees de antwoorden op veelvoorkomende problemen, of gebruik onze assistent om sneller informatie in de handleiding te vinden of uitleg te krijgen over specifieke functies.
Productinformatie
Merk | Whirlpool |
Model | WRS315SNBK |
Categorie | Koelkast |
Taal | Nederlands |
Grootte | 11124 MB |