Handleiding
Je bekijkt pagina 8 van 56

8
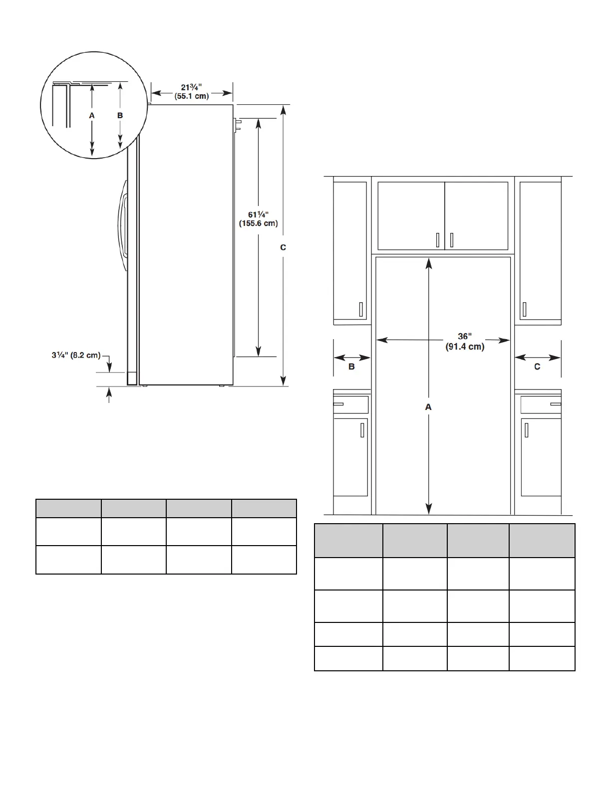
Product Dimensions – Side View
� Height dimensions are shown with the leveling legs extended
to the minimum height of 1/4" (6.35 mm) below the refrigerator.
NOTE: When leveling legs are fully extended to 1" (25 mm)
below the refrigerator, add 3/4" (19 mm) to the height
dimensions.
� The power cord is 61
1
/
4
" (155.6 cm) long.
� The water line attached to the back of the refrigerator is 78"
(198.1 cm) long.
Model Size Height A Height B Height C
69" 68
7
/
8
"
(174.9 cm)
68
7
/
8
"
(174.9 cm)
68
1
/
2
"
(174.0 cm)
72" 71
1
/
4
"
(181.0 cm)
71
1
/
4
"
(181.0 cm)
71"
(180.3 cm)
Opening Dimensions
� Height dimensions are shown with the leveling legs extended
to the minimum height of 1/4" (6.35 mm) below the refrigerator.
NOTE: When leveling legs are fully extended to 1" (25 mm)
below the refrigerator, add 3/4" (19 mm) to the height
dimensions.
� In the following graphic, “A” represents the opening height
required for standard cabinets. For full-overlay cabinet doors
with a trim kit, add 1/8" (0.3 cm).
� In the following graphic, “B” represents the distance needed to
fully open the freezer door and “C” represents the distance
needed to fully open the refrigerator door.
Model Size
and Door
Style
Height A
Width B Width C
69" Flat 69"
(175.3 cm)
13
5
/
8
"
(34.6 cm)
maximum*
18
1
/
8
"
(46.0 cm)
maximum*
72" Flat 72"
(182.9 cm)
71
1
/
4
"
(181.0 cm)
maximum*
18
1
/
8
"
(46.0 cm)
maximum*
69" Curved 69"
(175.3 cm)
13
5
/
8
"
(34.6 cm)
18
3
/
8
"
(46.7 cm)
72" Curved 72"
(182.9 cm)
13
3
/
4
"
(34.9 cm)
18
3
/
8
"
(46.7 cm)
*Dimension may vary based on style of door handle.
The width for the largest available handle is listed.
Bekijk gratis de handleiding van Whirlpool WRS315SDHW, stel vragen en lees de antwoorden op veelvoorkomende problemen, of gebruik onze assistent om sneller informatie in de handleiding te vinden of uitleg te krijgen over specifieke functies.
Productinformatie
Merk | Whirlpool |
Model | WRS315SDHW |
Categorie | Koelkast |
Taal | Nederlands |
Grootte | 11473 MB |