Handleiding
Je bekijkt pagina 34 van 56

34
Pièces nécessaires :
� Votre marchand de réfrigérateurs propose une trousse avec
un robinet d’arrêt à étrier de 1/4 po (6,35 mm), un raccord et
un tube en cuivre.
� L’utilisateur peut aussi acheter une canalisation de cuivre de
1/4 po (6,35 mm) avec robinet d’arrêt et un raccord à
compression de 1/4 po (6,35 mm).
� Selon les connexions de la canalisation d’eau, on peut aussi
avoir besoin d’un écrou de 1/4 po (6,35 mm) et d’une virole de
1/4 po (6,35 mm).
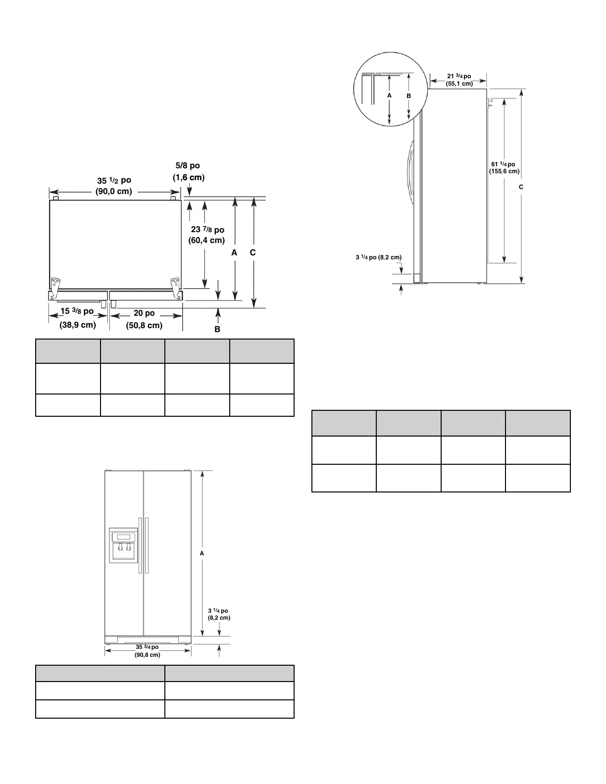
Dimensions du produit – Vue de dessus
35
1
/
2
(90,0 cm)
23
7
/
8
(60,
4 cm)
15
3
/
8
(38,9 cm)
A
B
C
5/8 po
(1,6 cm6 cm)
20 po
(50,8 cm)
po
po
po
Style de
porte
Profondeur A Profondeur B Profondeur C
Plate
27
1
/
2
po
(69,9 cm)
2
5
/
8
po
(6,7 cm)
maximum*
30 po
(76,2 cm)
maximum*
Incurvée
28
5
/
8
po
(72,7 cm)
2
5
/
8
po
(6,7 cm)
31
1
/
8
po
(79,1 cm)
* Les dimensions peuvent varier en fonction du type de poignée
de porte. La profondeur pour utilisation de la poignée la plus
profonde est indiquée.
Dimensions du produit – Vue avant
35
3
/
4
(90,
8 cm)
3
1
/
4
(8,2 cm)
A
po
po
Taille du modèle Hauteur A
69 po 65
3
/
4
po (167,0 cm)
72 po 68
1
/
8
po (173,0 cm)
Dimensions du produit – Vue latérale
21
3
/
4
(55,
1 cm)
61
1
/
4
(155,6 cm)
3
1
/
4
(8,2 cm)
C
A
B
po
po
po
� Les dimensions de hauteur sont illustrées avec les pieds de
nivellement déployés à la hauteur minimale de 1/4 po
(6,35 mm) sous le réfrigérateur.
REMARQUE : Lorsque les pieds de nivellement sont
totalement déployés de 1 po ((25 mm) au-dessous du
réfrigérateur, ajouter 3/4 po (19 mm) à la hauteur totale.
� La longueur du cordon d’alimentation est de 61
1
/
4
po
(155,6 cm).
� La canalisation d’eau fixée à l’arrière du réfrigérateur mesure
78 po (198,1 cm) de long.
Taille du
modèle
Hauteur A Hauteur B Hauteur C
69 po 68
7
/
8
po
(174,9 cm)
68
7
/
8
po
(174,9 cm)
68
1
/
2
po
(174,0 cm)
72 po 71
1
/
4
po
(181,0 cm)
71
1
/
4
po
(181,0 cm)
71 po
(180,3 cm)
Dimensions de l’ouverture
� Les dimensions de hauteur sont illustrées avec les pieds de
nivellement déployés à la hauteur minimale de 1/4 po
(6,35 mm) sous le réfrigérateur.
REMARQUE : Lorsque les pieds de nivellement sont
totalement déployés de 1 po (25 mm) au-dessous du
réfrigérateur, ajouter 3/4 po (19 mm) à la hauteur totale.
� Dans l’illustration suivante, « A » représente la hauteur
d’ouverture nécessaire pour des armoires ordinaires. Pour les
portes d’armoires à recouvrement complet avec ensemble de
garniture, ajouter 1/8 po (0,3 cm).
� Dans l’illustration suivante, « B » représente la distance
nécessaire pour l’ouverture complète de la porte du
congélateur et « C », la distance nécessaire pour l’ouverture
complète de la porte du réfrigérateur.
Bekijk gratis de handleiding van Whirlpool WRS315SDHW, stel vragen en lees de antwoorden op veelvoorkomende problemen, of gebruik onze assistent om sneller informatie in de handleiding te vinden of uitleg te krijgen over specifieke functies.
Productinformatie
Merk | Whirlpool |
Model | WRS315SDHW |
Categorie | Koelkast |
Taal | Nederlands |
Grootte | 11473 MB |