Handleiding
Je bekijkt pagina 3 van 50

EN / 3
1 Environmental Instructions
1.1 Disposal Of Packaging Materi-
als
The packaging material is recyclable and is
marked with the recycle symbol .
The various parts of the packaging must
therefore be disposed of responsibly and in
full compliance with local authority regula-
tions governing waste disposal.
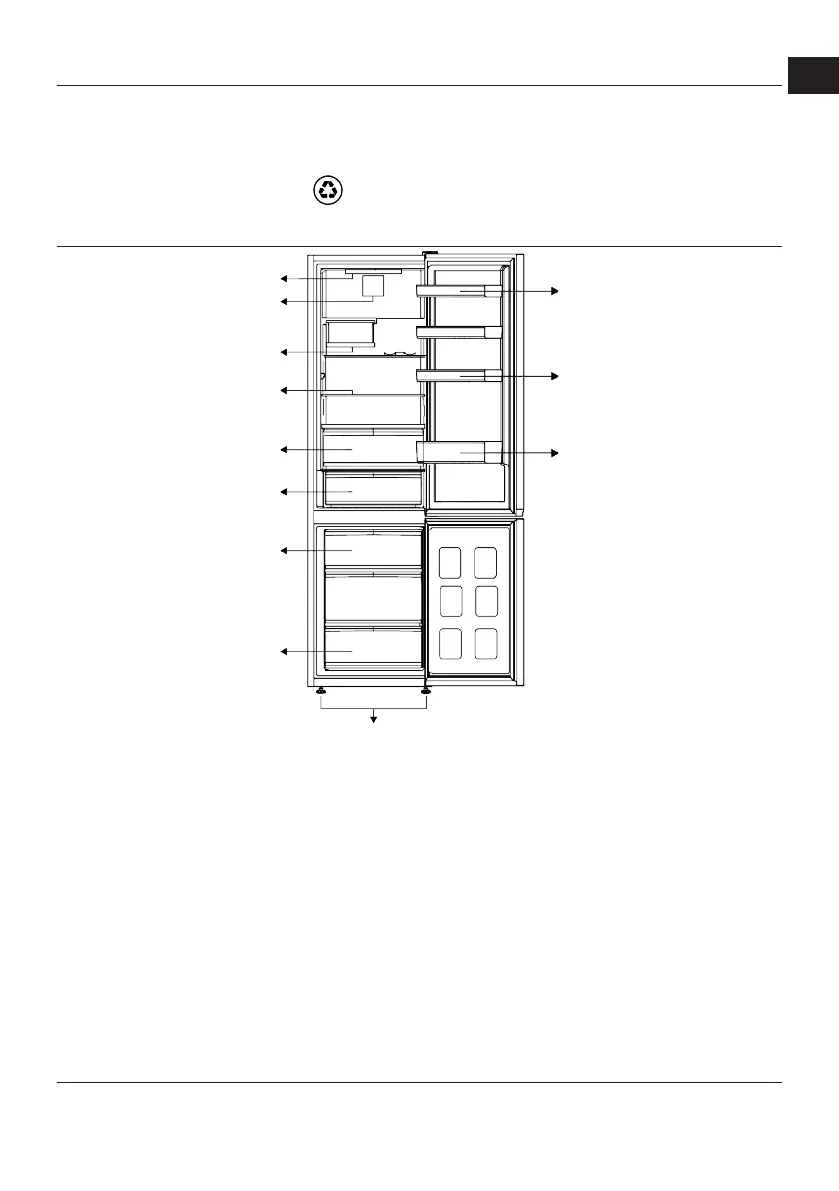
2 Your Refrigerator
1
2
3
4
5
6
7
8
9
10
11
12
1 * Adjustable Door Shelves 2 * Egg Holders
3 * Bottle Shelf 4 * Adjustable Front Legs
5 * Freezer Compartment 6 * Ice Container
7 * Cold Storage Drawer 8 * Crisper
9 * Adjustable Shelves 10 * Foldable Wine Bin
11 * Fan 12 * Illumination Lamp
*Optional: Figures in this user manual are
schematic and may not exactly match your
product. If your product does not comprise
the relevant parts, the information pertains
to other models.
3 Installation
Read the “Safety Instructions” first!
EN
FR
CS
SK
Bekijk gratis de handleiding van Whirlpool WHKH 1361 W4E, stel vragen en lees de antwoorden op veelvoorkomende problemen, of gebruik onze assistent om sneller informatie in de handleiding te vinden of uitleg te krijgen over specifieke functies.
Productinformatie
Merk | Whirlpool |
Model | WHKH 1361 W4E |
Categorie | Koelkast |
Taal | Nederlands |
Grootte | 4155 MB |