Handleiding
Je bekijkt pagina 24 van 65

DE / 24
1 Umwelthinweise
1.1 Entsorgung des Verpackungs-
materials
Das Verpackungsmaterial ist wiederver-
wertbar und ist mit dem Recycling-Symbol
gekennzeichnet .
Die verschiedenen Teile der Verpackung
müssen daher verantwortungsbewusst und
unter Beachtung der örtlichen Abfallbeseiti-
gungsvorschriften entsorgt werden.
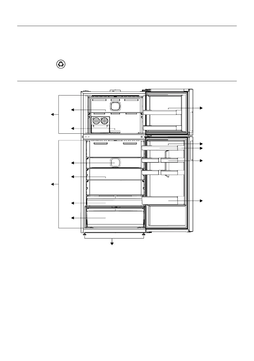
2 Ihr Kühlschrank
1
2
3
4
5
6
7
8
9
10
11
12
13
14
1 *Türeinschübe im Gefrierfach 2 Eierhalter
3 *Türeinschübe im Kühlfach 4 *Kleine Türeinschübe im Kühlfach
5 Flaschenablage 6 Verstellbare Füße
7 Gemüsefach, Gemüsefachabscheider
und Ethylenfilter
8 Milchschublade (Kühllagerung)
9 *Glasregale 10 Lüfter
11 *Eismaschine/ Eiswürfelbehälter 12 Glaszwischenboden für Gefrierfach
13 Gefrierfach 14 Kühlfach
Bekijk gratis de handleiding van Whirlpool WHD2 6553 X5E, stel vragen en lees de antwoorden op veelvoorkomende problemen, of gebruik onze assistent om sneller informatie in de handleiding te vinden of uitleg te krijgen over specifieke functies.
Productinformatie
Merk | Whirlpool |
Model | WHD2 6553 X5E |
Categorie | Koelkast |
Taal | Nederlands |
Grootte | 5712 MB |