Handleiding
Je bekijkt pagina 12 van 21

GUIDE DE DIMENSIONS
TABLE DE CUISSON À INDUCTION
IMPORTANT: Les spécications dimensionnelles sont fournies uniquement à des ns de planication.
N’aménager aucune ouverture sur la base de cette information. Se référer au Guide d’installation avant de
choisir une armoire, de vérier les connexions électriques/au gaz, d’effectuer des découpes ou de commencer
l’installation. Tous les appareils Whirlpool
®
sont homologués UL, CUL ou CSA.
12 de 21
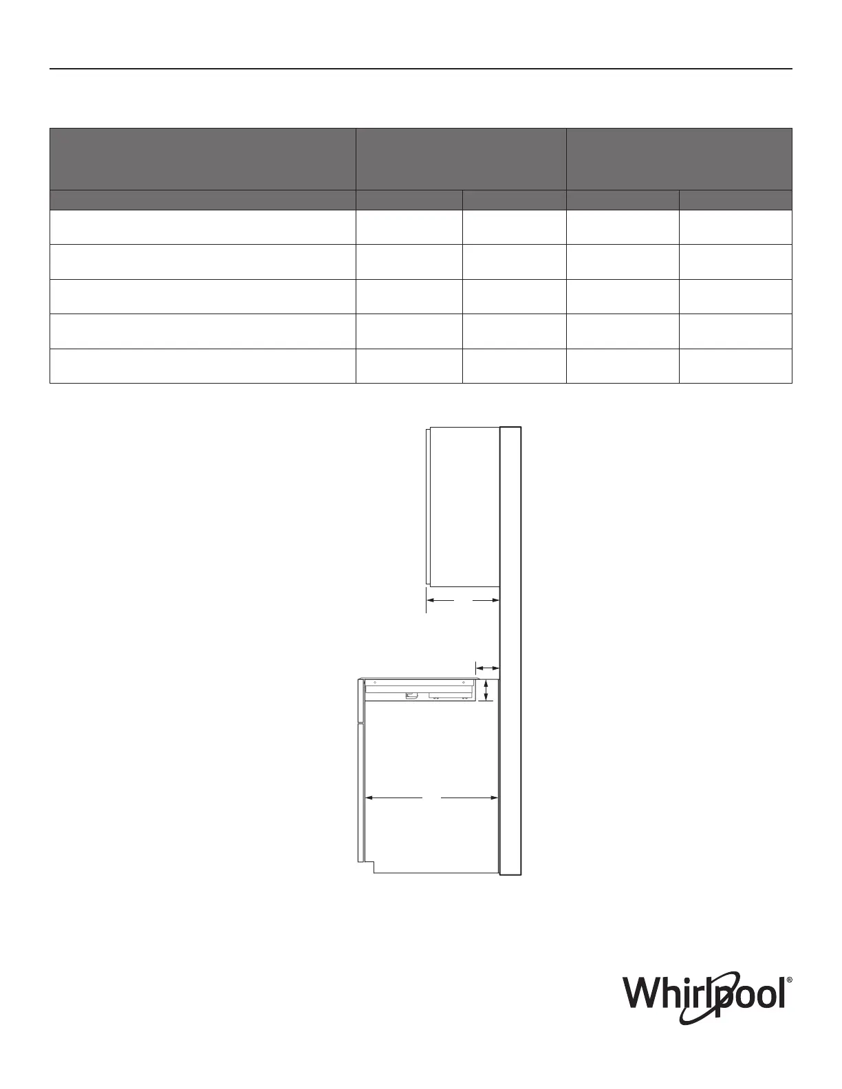
DIMENSIONS D’OUVERTURE ET DE DÉGAGEMENT
NO DE MODÈLE
Table de cuisson de 30po
(78,2cm)
WCIT7530SB/WCIT7530SS/
WCIT7030SB/WCIT7030SS
Table de cuisson de 36po
(91,4cm)
WCIT7536SB/WCIT7536SS
Unité de mesure po cm po cm
Profondeur recommandée de l’armoire du dessus (E) 13 33 13 33
Découpe à la profondeur du mur (si le mur à l’arrière
est fabriqué d’un matériau non combustible) (F)*
1 2,5 1 2,5
Découpe à la profondeur du mur (si le mur à l’arrière
est fabriqué d’un matériau combustible) (F)*
1 2,5 1 2,5
Hauteur de l’armoire au-dessus du comptoir (G) 3
15
/
16
10 3
15
/
16
10
Profondeur de l’armoire (H) 23
1
/
4
59,1 23
1
/
4
59,1
*Si le mur à l’arrière est fabriqué d’un matériau combustible et qu’aucun dosseret n’est installé, un dégagement de 7
3
/
4
po (19,7cm)
est requis de la découpe ou un dégagement minimum de 6po (15,2cm) de l’arrière de la table de cuisson.
VUE LATÉRALE
E
F
*
G
H
Bekijk gratis de handleiding van Whirlpool WCIT7030SS, stel vragen en lees de antwoorden op veelvoorkomende problemen, of gebruik onze assistent om sneller informatie in de handleiding te vinden of uitleg te krijgen over specifieke functies.
Productinformatie
Merk | Whirlpool |
Model | WCIT7030SS |
Categorie | Fornuis |
Taal | Nederlands |
Grootte | 2440 MB |