Handleiding
Je bekijkt pagina 76 van 304

- 76 -
Instruções de instalação
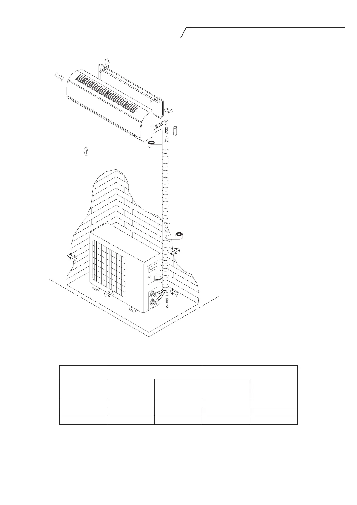
Esquema de instalação
A distância em relação à parede
deve ser superior a 50 mm
A distância em relação ao teto
deve ser superior a 200 mm
A distância em relação à parede
deve ser superior a 50 mm
NOTA: A gura é apenas uma simples
apresentação da unidade, podendo não
corresponder ao aspeto exterior do produto
adquirido. A instalação deve ser efectuada de
acordo com a norma nacional de cablagem
apenas por pessoal de assistência autorizado.
Recomenda-se que a distância do chão
seja superior a 2500 mm
Unidade interior
Unidade exterior
Distância da entrada de ar à
parede deve ser superior a
250 mm
Distância da entrada de ar à
parede deve ser superior a
250 mm
A distância entre a saída de ar e a
parede deve ser superior a 500 mm
Superior
a 250 mm
Quando instalar o cabo de interligação, certique-se de que a cor dos os e o n.º do terminal da unidade exterior são iguais aos da
unidade interior.
Especicações dos cabos
Capacidade
(Btu/h)
Cabo de alimentação Cabo de ligação à corrente
Tipo
Secção
transversal
normal
Tipo
Secção
transversal
normal
7K, 9K, 12K H07RN-F 1,0 mm
2
X3 H07RN-F 1,0 mm
2
X5
18K H07RN-F 1,5 mm
2
X3 H07RN-F 1,5 mm
2
X5
24 K H07RN-F 2,5 mm
2
X3 H07RN-F 2,5 mm
2
X5
Bekijk gratis de handleiding van Whirlpool SPICR 309W, stel vragen en lees de antwoorden op veelvoorkomende problemen, of gebruik onze assistent om sneller informatie in de handleiding te vinden of uitleg te krijgen over specifieke functies.
Productinformatie
| Merk | Whirlpool |
| Model | SPICR 309W |
| Categorie | Airco |
| Taal | Nederlands |
| Grootte | 38326 MB |
Caratteristiche Prodotto
| Kleur van het product | Wit |
| Ingebouwd display | Ja |
| Soort | Binneneenheid airconditioning |
| Gebruikershandleiding | Ja |
| Koelend medium | R32 |







