Handleiding
Je bekijkt pagina 16 van 304

- 16 -
Installation instruction
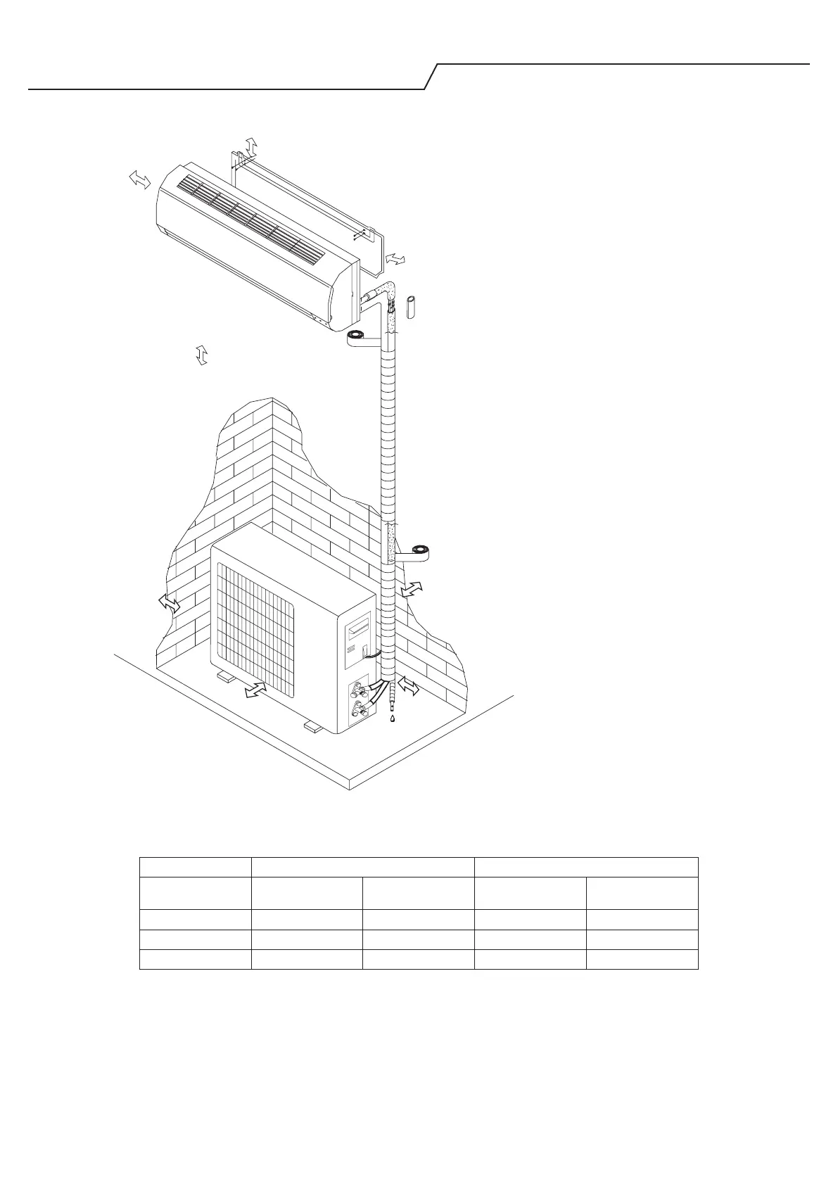
Installation diagram
Distance from wall
should be over 50mm
Distance from ceiling
should be over 200mm
Distance from the wall
should be over 50mm
NOTE: The gure is only a simple presentation
of the unit, it may not mutch typo the external
appearance of the product you purchased.
Installation must be performed in accordance
with the national wiring standard by
authorized service people only.
Distance from oor
is recommended to be over 2500mm
Indoor unit
Outdoor unit
Air intake distance from the
wall should be over 250mm
Air intake distance from the
wall should be over 250mm
Air outlet distance from the wall
should be over 500mm
Over 250mm
When installing interconnection cord , make sure that the color of wires and the terminal No. of outdoor unit shall be same as those in
indoor unit.
Cable Specications
Capacity (Btu/h) Power cord Power connecting cord
Type
Normal cross -
sectional area
Type
Normal cross -
sectional area
7K, 9K, 12K H07RN-F 1.0mm
2
X3 H07RN-F 1.0mm
2
X5
18K H07RN-F 1.5mm
2
X3 H07RN-F 1.5mm
2
X5
24 K H07RN-F 2.5mm
2
X3 H07RN-F 2.5mm
2
X5
Bekijk gratis de handleiding van Whirlpool SPICR 309W, stel vragen en lees de antwoorden op veelvoorkomende problemen, of gebruik onze assistent om sneller informatie in de handleiding te vinden of uitleg te krijgen over specifieke functies.
Productinformatie
| Merk | Whirlpool |
| Model | SPICR 309W |
| Categorie | Airco |
| Taal | Nederlands |
| Grootte | 38326 MB |
Caratteristiche Prodotto
| Kleur van het product | Wit |
| Ingebouwd display | Ja |
| Soort | Binneneenheid airconditioning |
| Gebruikershandleiding | Ja |
| Koelend medium | R32 |







