Handleiding
Je bekijkt pagina 78 van 80

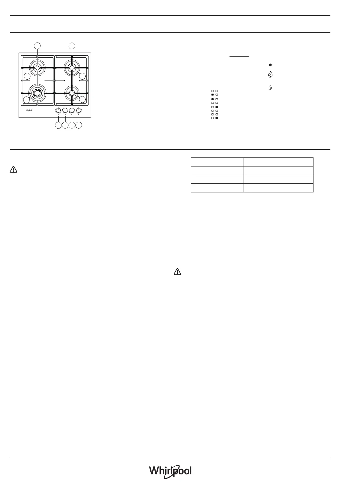
ОПИС ВИРОБУ
1. Знімні решітки для каструль
2. 2-кільцевa конфорка
3. Напівшвидка конфорка
4. Напівшвидка конфорка
5. Допоміжна конфорка
6. Ручка керування потужністю 2- кільцевої конфорки
7. Ручка керування потужністю напівшвидкої конфорки
8. Ручка керування потужністю напівшвидкої конфорки
9. Ручка керування потужністю допоміжної конфорки
Символи
Зафарбований круг
Велике полум’я
Мале полум’я
Перекритий кран
Максимальний отвір/подача
й електричне запалювання
Mінімальний отвір
і знижена подача
1
1
3
6
7
8
9
2
4
5
ВИКОРИСТАННЯ ВАРИЛЬНОЇ ПАНЕЛІ
Регулюйте потужність полум’я конфорки так, щоб воно не виходило
за межі сковороди або каструлі.
ВАЖЛИВО! під час використання варильної панелі може нагріватися
вся її поверхня.
• Щоб запалити одну з конфорок, поверніть відповідну ручку проти
годинникової стрілки до позначки максимального полум’я.
• Притисніть ручку до панелі керування, щоб запалити конфорку.
• Утримуйте ручку натиснутою впродовж 5–10 секунд після
запалювання конфорки, щоб прилад запрацював належним чином.
• Захисний механізм цієї конфорки вимикає подачу газу на конфорку,
якщо полум’я раптом зникає (через несподіваний протяг, перебої в
подачі газу, википання рідини тощо).
• Не рекомендовано утримувати ручку натиснутою понад 15
секунд. Якщо і після цього періоду часу конфорка не запалиться,
зачекайте хвилину, перш ніж спробувати запалити її ще раз.
ПРИМІТКА. Якщо через певні місцеві умови та якість подачі газу
виникають труднощі із запаленням конфорок, рекомендовано
повторити спробу запалювання, повернувши ручку керування
потужністю конфорки до позначки малого полум’я.
Полум’я конфорки може згаснути, якщо відпустити ручку. Це
означає, що захисний механізм недостатньо прогрівся. У такому разі
повторіть перелічені вище дії.
Якщо полум’я випадково згасло, вимкніть газ ручкою регулювання та
зачекайте приблизно 1 хвилину перед тим як запалювати його знову.
ПРАКТИЧНІ ПОРАДИ З ВИКОРИСТАННЯ КОНФОРОК
Ця варильна панель має конфорки різного діаметру. Щоб ефективніше
використовувати конфорки, радимо:
• використовувати каструлі та сковороди, дно яких має такий самий
або трохи більший діаметр, як і конфорки (див. таблицю праворуч);
• використовувати тільки каструлі та сковороди з плоским дном;
• використовувати правильну кількість води для приготування страв
і накривати каструлі кришками;
• стежити, щоб каструлі на решітці не виступали за межі варильної
панелі;
• (для сковорід із випуклим дном – вок) використовувати допоміжну решітку,
яку слід розташовувати тільки над багатокільцевою конфоркою;
• уникайте випадкових ударів каструлями, ґратками або іншою
кухонними начинням;
• Не залишайте порожні cкoвopoди для бapбeкю на yвімкнeній
кoнфopці більше 5 хвилин.
ВАЖЛИВО! Неправильне використання решіток може призвести
до пошкодження варильної панелі. Не ставте решітку догори дном
і не тягніть її по варильній панелі.
КОНФОРКA Ø КАСТРУЛІ
2-кільцевa Від 24 до 26 см
Напівшвидкa Від 16 до 22 см
Допоміжнa Від 8 до 14 см
Не використовуйте:
• чавунні, керамічні та виготовлені з натурального каміння каструлі
та сковороди;
• пристрої для рівномірного розсіювання полум’я (наприклад,
металева сітка тощо);
• одночасно дві конфорки для однієї посудини (наприклад, довга
посудина для приготування риби).
Потрапляння рідини на гарячу варильну панель може спричинити
пошкодження скла.
НАЛАШТУВАННЯ ВАРИЛЬНОЇ ПАНЕЛІ ВІДПОВІДНО ДО ІНШОГО
ТИПУ ГАЗУ
Лише кваліфікований майстер повинен проводити цю процедуру.
Якщо на варильну панель постачатиметься інший тип газу, ніж указано в
табличці технічних даних і на інформаційній етикетці на самій поверхні
панелі, змініть форсунки. Зніміть інформаційну етикетку та зберігайте її
в посібнику з інструкціями.
Використовуйте регулятори тиску, сумісні з показниками тиску
газу, вказаними в цих інструкціях:
• Лише працівники центру післяпродажного обслуговування або
кваліфіковані фахівці повинні замінювати газові форсунки.
• Форсунки, які не входять до комплекту постачання, слід замовляти в
центрі післяпродажного обслуговування.
• Установіть для кранів подачі газу мінімальне значення.
ПРИМІТКА. У разі використання зрідженого нафтового газу (G30/G31)
гвинт регулювання мінімального значення потрібно максимально
закрутити.
ВАЖЛИВО! У разі виникнення труднощів з повертанням ручок
керування потужністю конфорок, зверніться до центру післяпродажного
обслуговування, щоб замінити несправний кран конфорки.
ВАЖЛИВО! Переконайтеся, що газовий балон або ємність із газом
розміщуються належним чином (у вертикальному положенні), а
вже потім підключайте до них варильну панель.
ВАЖЛИВО! Переконайтеся, що газовий балон або ємність із газом
розміщуються належним чином (у вертикальному положенні), а
вже потім підключайте до них варильну панель.
ЩОДЕННЕ ВИКОРИСТАННЯ
Bekijk gratis de handleiding van Whirlpool GOFL 629/WH, stel vragen en lees de antwoorden op veelvoorkomende problemen, of gebruik onze assistent om sneller informatie in de handleiding te vinden of uitleg te krijgen over specifieke functies.
Productinformatie
| Merk | Whirlpool |
| Model | GOFL 629/WH |
| Categorie | Fornuis |
| Taal | Nederlands |
| Grootte | 13137 MB |
Caratteristiche Prodotto
| Apparaatplaatsing | Ingebouwd |
| Soort bediening | Draaiknop |
| Kleur van het product | Wit |
| Ingebouwd display | Nee |
| Timer | Nee |







