Wamsler K 148 handleiding
Handleiding
Je bekijkt pagina 113 van 120

113
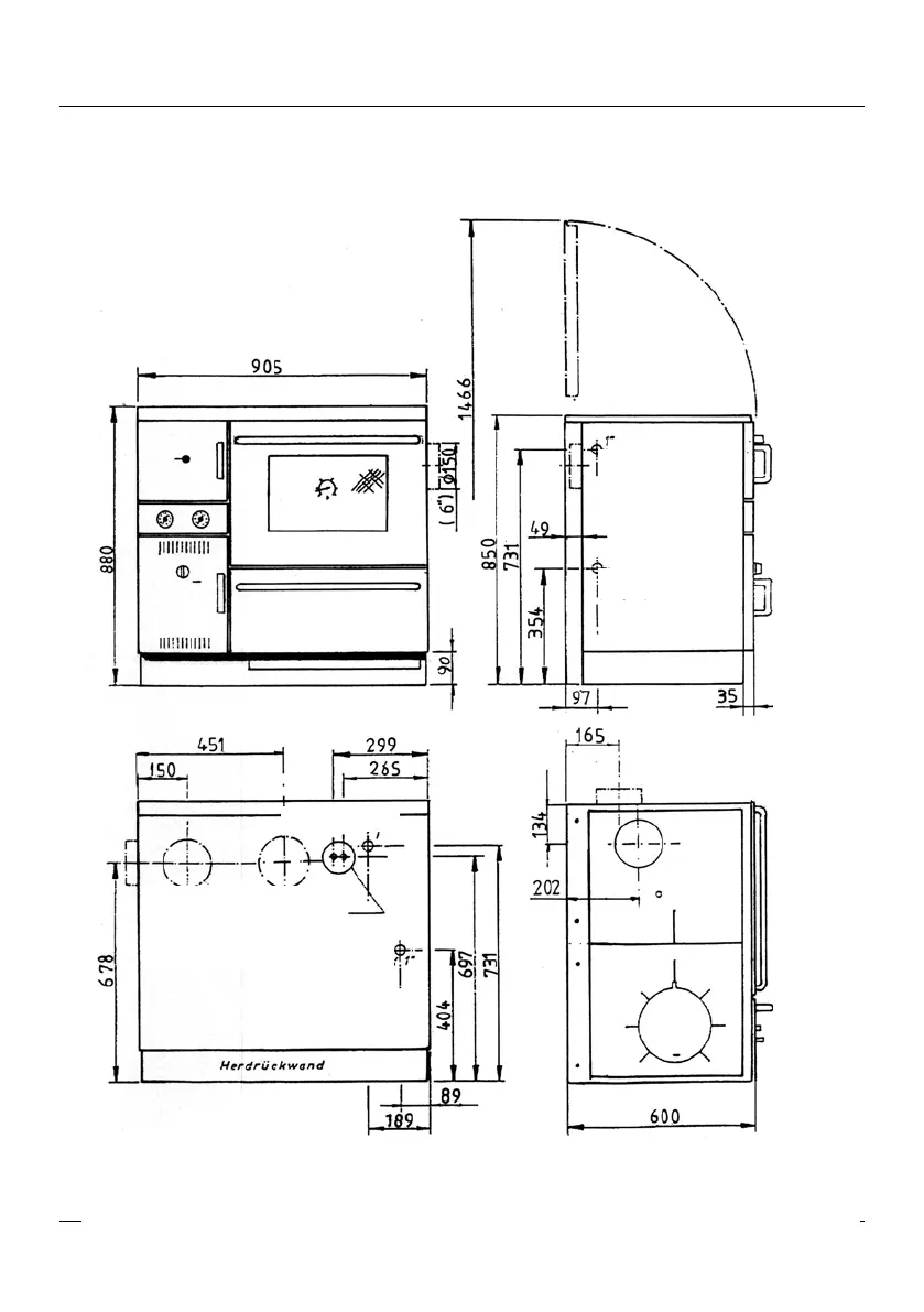
5.4 Disegni e dimensioni
Queste dimensioni sono indicate a solo scopo informativo! Ci riserviamo il diritto di
apportare eventuali modifiche strutturali a vantaggio del progresso tecnologico o del
miglioramento qualitativo!
Allacciamento scam-
biatore termico
con
valvola di
scarico
termico ⅜”
ritorno 1“
mandata 1“
mandata 1“
ritorno 1“
Bekijk gratis de handleiding van Wamsler K 148, stel vragen en lees de antwoorden op veelvoorkomende problemen, of gebruik onze assistent om sneller informatie in de handleiding te vinden of uitleg te krijgen over specifieke functies.
Productinformatie
| Merk | Wamsler |
| Model | K 148 |
| Categorie | Niet gecategoriseerd |
| Taal | Nederlands |
| Grootte | 17370 MB |







