Wamsler F-Box handleiding
Handleiding
Je bekijkt pagina 65 van 84

65
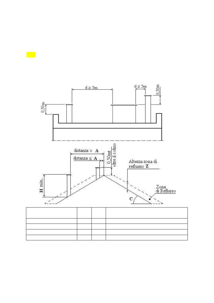
− Avere sezione utile di uscita non inferiore al doppio di quella interna del
camino;
− Essere costruito in modo da impedire la penetrazione nel camino di pioggia,
neve, corpi estranei e in modo che anche in caso di venti di ogni direzione e
inclinazione sia comunque assicurato lo scarico dei prodotti della combustione;
− Essere posizionato in modo da garantire una adeguata dispersione e diluizione
dei prodotti della combustione e comunque al di fuori della zona di reflusso in
cui è favorita la formazione di contropressioni. Tale zona ha dimensioni e
conformazioni diverse in funzione dell’angolo di inclinazione della copertura,
per cui risulta necessario adottare le altezze minime indicate negli schemi
seguenti:
Inclinazione del tetto
C (°)
A H Altezza della zona di reflusso Z (m)
15 1,85 1,00 0,50
30 1,50 1,30 0,80
45 1,30 2,00 1,50
60 1,20 2,50 2,10
Bekijk gratis de handleiding van Wamsler F-Box, stel vragen en lees de antwoorden op veelvoorkomende problemen, of gebruik onze assistent om sneller informatie in de handleiding te vinden of uitleg te krijgen over specifieke functies.
Productinformatie
| Merk | Wamsler |
| Model | F-Box |
| Categorie | Niet gecategoriseerd |
| Taal | Nederlands |
| Grootte | 9628 MB |







