Handleiding
Je bekijkt pagina 34 van 36

Page 34 of 36
thermostat and the solenoid.
iii. The solenoid will close the gas valve and shutoff gas to the burner.
iv. Pilot remains lit.
5. Fan control switch to OFF.
A. Power is removed from one side of the convection motor.
i. The centrifugal switch will open and power will be removed from the
solenoid and the thermostat.
ii. The solenoid will close the gas valve and shutoff the gas to the burner.
iii. Pilot remains lit.
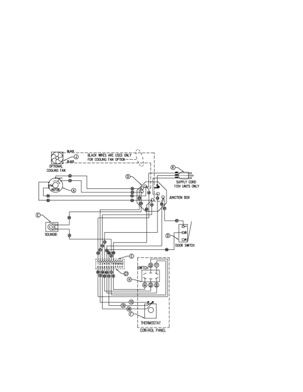
WIRING DIAGRAMS
Figure 41: 120V C Model
Bekijk gratis de handleiding van Vulcan V4B36, stel vragen en lees de antwoorden op veelvoorkomende problemen, of gebruik onze assistent om sneller informatie in de handleiding te vinden of uitleg te krijgen over specifieke functies.
Productinformatie
Merk | Vulcan |
Model | V4B36 |
Categorie | Fornuis |
Taal | Nederlands |
Grootte | 3189 MB |