Vimar 20445.B handleiding

88 pagina's
PDF beschikbaar

Handleiding

Je bekijkt pagina 50 van 88
46 - DEUTSCH
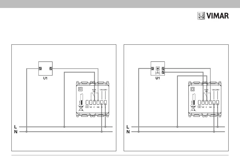
5. ANSCHLÜSSE.
5.1 - Anschluss-Schaltplan.
Umlaufpumpen, Brenner, Magnetventile.
Gesteuerte Ventile.
ÖFFNEN
SCHLIESSEN

Bekijk gratis de handleiding van Vimar 20445.B, stel vragen en lees de antwoorden op veelvoorkomende problemen, of gebruik onze assistent om sneller informatie in de handleiding te vinden of uitleg te krijgen over specifieke functies.

Productinformatie

MerkVimar
Model20445.B
CategorieThermostaat
TaalNederlands
Grootte5346 MB