Handleiding
Je bekijkt pagina 10 van 22

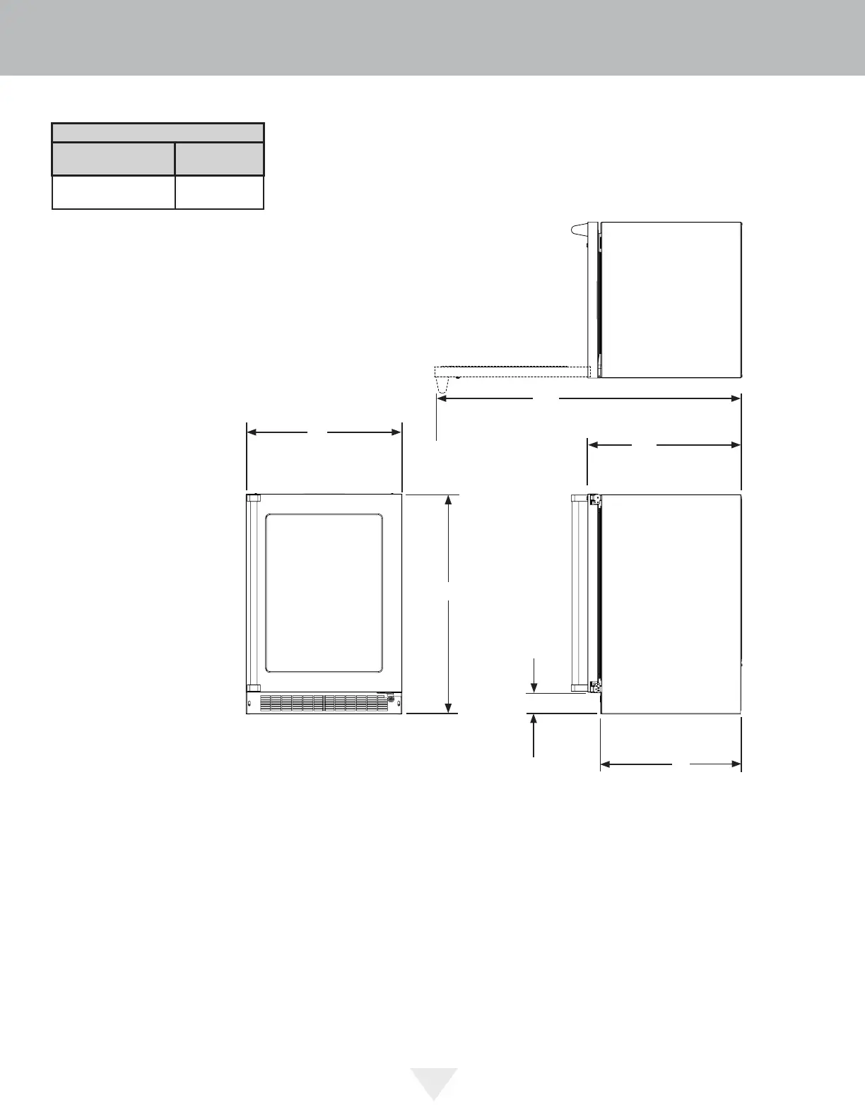
PRODUCT DATA
ELECTRICAL
REQUITEMENTS #
PRODUCT
WEIGHT
115V/60Hz/15A
140 lbs
(63.6 kg)
3 1/2” (8.9 cm)
Minimum
“D”
“E”
“F”
Glass Door
Shown
21 1/2”
(54.6 cm)
“H”
Minimum rough-in opening is required to be larger than the
adjusted height of the cabinet.
A grounded 15-amp dedication circuit us required. Follow
all local building codes when installing electrical and
appliance.
CUTOUT AND PRODUCT DIMENSIONS
10
Figure 14
Bekijk gratis de handleiding van Viking FBUI5242D, stel vragen en lees de antwoorden op veelvoorkomende problemen, of gebruik onze assistent om sneller informatie in de handleiding te vinden of uitleg te krijgen over specifieke functies.
Productinformatie
Merk | Viking |
Model | FBUI5242D |
Categorie | Koelkast |
Taal | Nederlands |
Grootte | 2745 MB |