Videotec NTW handleiding
Handleiding
Je bekijkt pagina 25 van 64

Manuale di istruzioni - Italiano - IT
11MNVCNTW_2222_IT
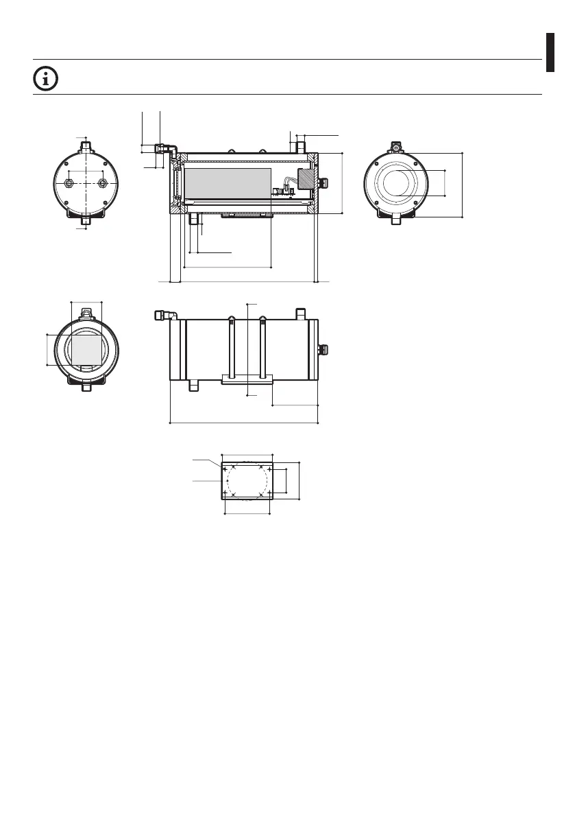
11 Disegni tecnici
Le misure indicate sono espresse in millimetri.
78
130
Ø 101.5
M5
115
78
164
60
94
A
A
87
B - B
Ø 65
26 345
223
9
Ø 154
20
A - A
1/2" GAS
1/4" GAS
28
28
1/2" GAS
1/2" GAS
380
116.5
B
B
AREA UTILE
(CON ALIMENTATORE)
AREA
UTILE
BASE DI FISSAGGIO
Fig. 12 NTW.
Bekijk gratis de handleiding van Videotec NTW, stel vragen en lees de antwoorden op veelvoorkomende problemen, of gebruik onze assistent om sneller informatie in de handleiding te vinden of uitleg te krijgen over specifieke functies.
Productinformatie
| Merk | Videotec |
| Model | NTW |
| Categorie | Niet gecategoriseerd |
| Taal | Nederlands |
| Grootte | 5666 MB |







