Vevor BTC002E handleiding
Handleiding
Je bekijkt pagina 34 van 204

8
Paso 2
2x2
Un x14
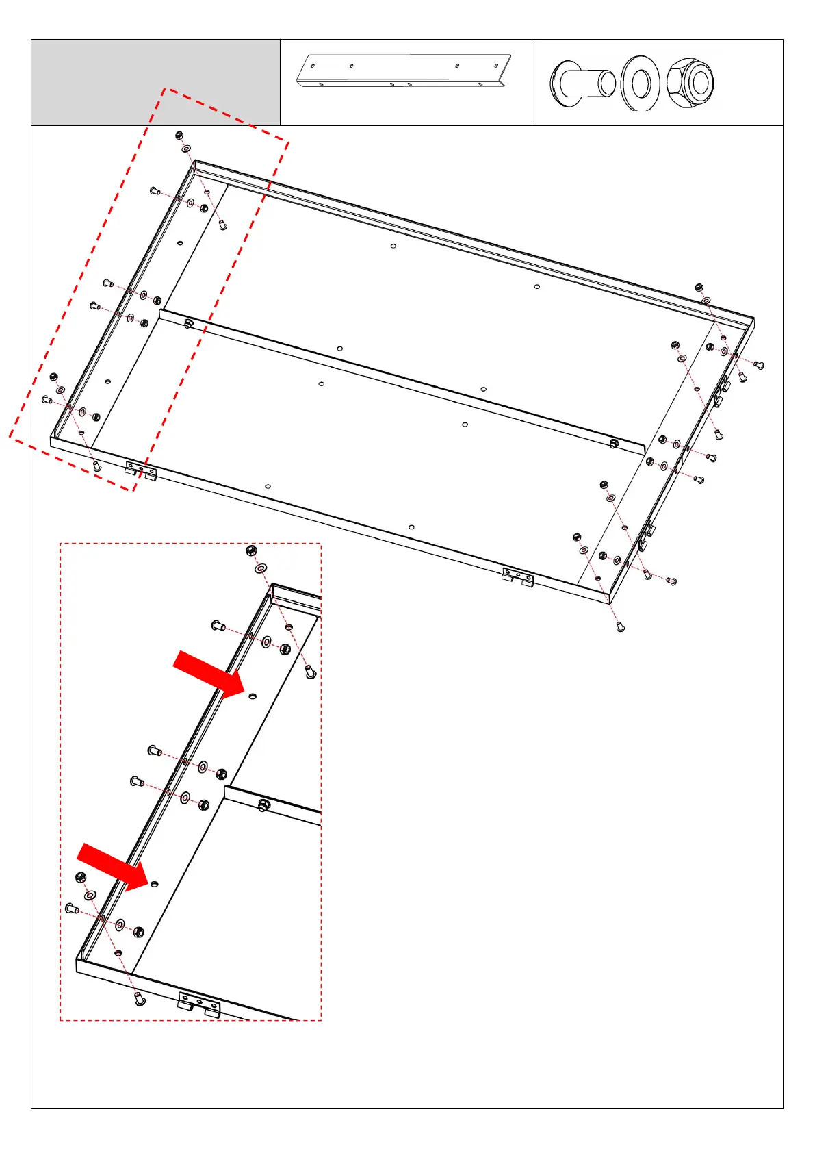
3. Gire la placa base hacia el otro lado y luego instálela.
4. Coloque ángulos de hierro (2 x 2) en ambos extremos respectivamente y fíjelos con tornillos (A) .
Precaución: No atornille por el momento los dos orificios de montaje marcados con la flecha
en el ángulo de hierro; están reservados para su uso en los pasos de instalación posteriores.
A
Bekijk gratis de handleiding van Vevor BTC002E, stel vragen en lees de antwoorden op veelvoorkomende problemen, of gebruik onze assistent om sneller informatie in de handleiding te vinden of uitleg te krijgen over specifieke functies.
Productinformatie
| Merk | Vevor |
| Model | BTC002E |
| Categorie | Niet gecategoriseerd |
| Taal | Nederlands |
| Grootte | 57510 MB |







