Vevor BTC002D handleiding
Handleiding
Je bekijkt pagina 60 van 204

8
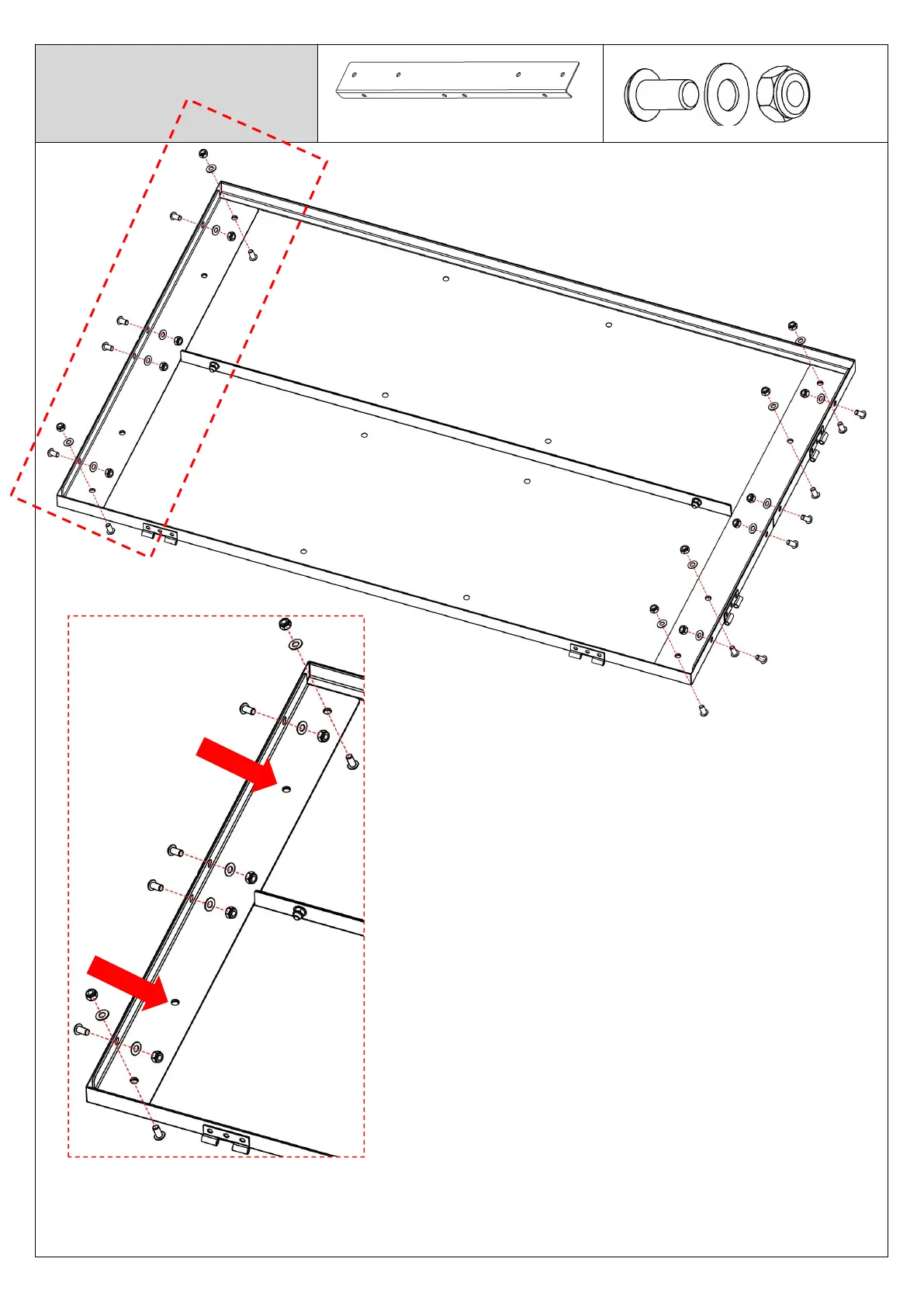
Steg 2
2x2
En x14
5. Vänd bottenplattan åt andra sidan och montera den sedan.
6. Montera vinkeljärn (2 x 2) i båda ändar och fäst dem med skruvar (A) .
Varning: Skruva inte fast de två monteringshålen som är markerade med pilen på vinkeljärnet
tills vidare; de är reserverade för användning i efterföljande installationssteg.
A
Bekijk gratis de handleiding van Vevor BTC002D, stel vragen en lees de antwoorden op veelvoorkomende problemen, of gebruik onze assistent om sneller informatie in de handleiding te vinden of uitleg te krijgen over specifieke functies.
Productinformatie
| Merk | Vevor |
| Model | BTC002D |
| Categorie | Niet gecategoriseerd |
| Taal | Nederlands |
| Grootte | 57510 MB |







