Vevor ACDC TIG-225 handleiding

176 pagina's
PDF beschikbaar

Handleiding

Je bekijkt pagina 64 van 176
19
6
55 44 33 22 11 6
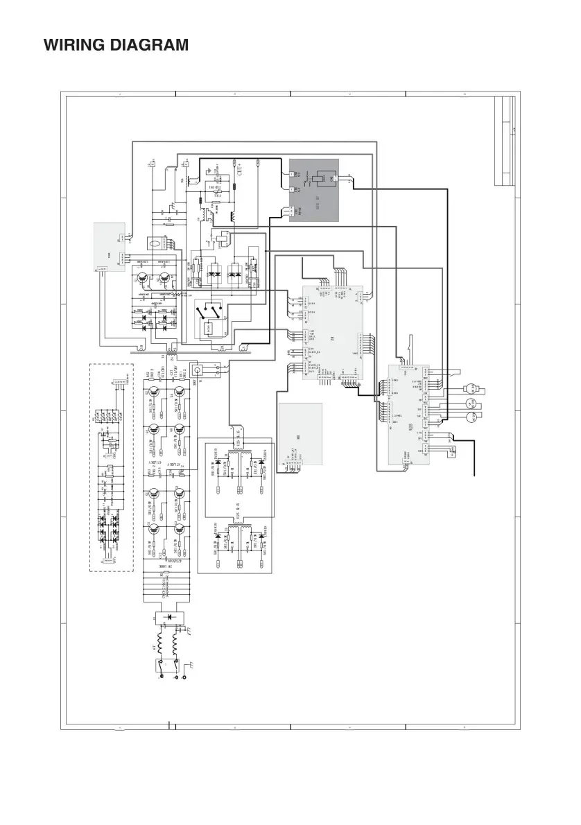
Datei...:. .....Und.:.E. :\F\ . ÿ ÿ ÿ \A. ÿ C. D. C. WIGÿ ÿ ÿ -200225ÿ ÿ ÿ ÿ ÿ ÿ Vollständiger Brückenschaltplan. ÿ ÿ ÿ ÿ
Die Nummer ist
Überarbeitung
07.11.2024
Sie et von
Eine 3
woncB
Titel
ÿÿÿ
Datum :
SDc
Von ize
Machine Translated by Google

Bekijk gratis de handleiding van Vevor ACDC TIG-225, stel vragen en lees de antwoorden op veelvoorkomende problemen, of gebruik onze assistent om sneller informatie in de handleiding te vinden of uitleg te krijgen over specifieke functies.

Productinformatie

MerkVevor
ModelACDC TIG-225
CategorieNiet gecategoriseerd
TaalNederlands
Grootte42436 MB