Vevor ACDC TIG-200 handleiding
Handleiding
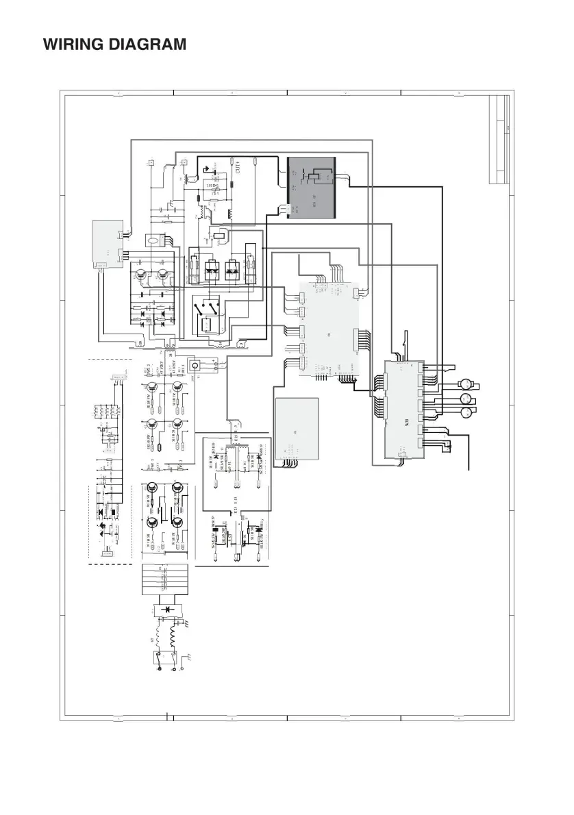
Je bekijkt pagina 64 van 176

3
Masse
D
GN
4
X IA OHU
V K2/1 74
1 Wohnmobil
UA RT 2_R X
DNG
Masse 1
Masse
Masse
V5
Masse
SAAL
DNG
19
2
2
3 2
4
1
1
1
LG K-SEL
33
2
1
w2/02
UA RT1_R X
3
2
3
3
1 V51
01 P
2
24 V
2
1
1
1
V036/ F U2.2
1
23
3
73
4
8
3
4
w2/02
1 G
3
3
2
3
V03 6/FU2.2
3
6 +15 V 1
63 2 G
1
2
3
3
03
2 E
92
6P
93
24 V
2
4
5 4
8P
24 V
1
2
2
1
24 V
V008/F U02
82
2
8
w2/02
3
1
1
2
+V
1
1
V008/ FU02
1
3
33
3 2
4
w2/02
1
24 V
7
72
1
V052/F U04
11 P
2
2
23
2
4P
3P
15 V 1
Linie mm4 81 HE doppelt T61
4
6
5
53
3
62
+15 V
1
1
83
5 V
13
2
1
-V
53
43
3
5 6
1
1
-15 V
4
3
LG K-SEL
2
2
5 Punkte
UA RT1_TX
4
43
7
24 V
2
1 E
V K2/174
193 D41
V036/574
1
1
6
ÿÿÿ
Sie et von
UND.F. ile...
H ED
:ÿ ÿÿÿÿÿ Und.
Vollständiger Brückenschaltplan
Datum :
ÿÿÿÿÿÿ
:
19
1
6
1
ÿÿÿÿ \Aÿÿ Cÿ Dÿ Cÿ TIG
Eine 3
ER
4
-200225
ÿÿÿ
D
2
Überarbeitung
SDc
5
3
07.11.2024
woncB
:.
4
ÿÿÿÿÿ
Die Nummer ist
Von ize
5
3
G1G
2
Titel
K0 0 1 W3
Machine Translated by Google
Bekijk gratis de handleiding van Vevor ACDC TIG-200, stel vragen en lees de antwoorden op veelvoorkomende problemen, of gebruik onze assistent om sneller informatie in de handleiding te vinden of uitleg te krijgen over specifieke functies.
Productinformatie
| Merk | Vevor |
| Model | ACDC TIG-200 |
| Categorie | Niet gecategoriseerd |
| Taal | Nederlands |
| Grootte | 43755 MB |







