Vevor ACDC TIG-200 handleiding
Handleiding
Je bekijkt pagina 42 van 176

3
Terre
D
GN
4
XIAOHU
VK2/174
1VR
UART2_RX
DNG
GND1
Terre
Terre
V5
Terre
SALLE
DNG
19
2
2
32
4
1
1
1
LGKSEL
33
2
1
w2/02
UART1_RX
3
2
3
3
1V51
01P
2
24V
2
1
1
1
V036/FU2.2
1
23
3
73
4
8
3
4
w2/02
1G
3
3
2
3
V036/FU2.2
3
6+15V1
632G
1
2
3
3
03
2E
92
6P
93
24V
2
4
54
8P
24V
1
2
2
1
24V
V008/FU02
82
2
8
w2/02
3
1
1
2
+V
1
1
V008/FU02
1
3
33
32
4
w2/02
1
24V
7
72
1
V052/FU04
11P
2
2
23
2
4P
3P
15V1
Lignemm481UdoubleT61
4
6
5
53
3
62
+15V
1
1
83
5V
13
2
1
V
53
43
3
56
1
1
15V
4
3
LGKSEL
2
2
5P
UART1_TX
4
43
7
24V
2
1E
V036/574
193D41
VK2/174
1
1
:et.
5
3
D
Révision
SDC
2024/11/7
:
9
6
Lenuméroest
Deize
G1G
4
Titre
5
3
2
1
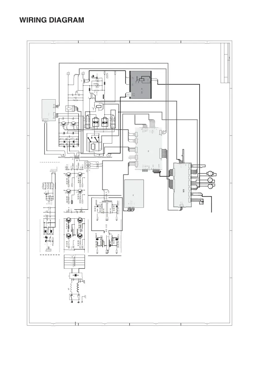
Schémadecâblagedupontcomplet
woncB
Fil...
Elleetde
ET.
Date:
:
4
6
1
\UN..CD.CTIG
2
200225
K001W3
Machine Translated by Google
Bekijk gratis de handleiding van Vevor ACDC TIG-200, stel vragen en lees de antwoorden op veelvoorkomende problemen, of gebruik onze assistent om sneller informatie in de handleiding te vinden of uitleg te krijgen over specifieke functies.
Productinformatie
| Merk | Vevor |
| Model | ACDC TIG-200 |
| Categorie | Niet gecategoriseerd |
| Taal | Nederlands |
| Grootte | 43755 MB |







