Vevor 2006-UV9X2 handleiding
Handleiding
Je bekijkt pagina 83 van 153

5
británico
CAMA Y
DESAYUNO
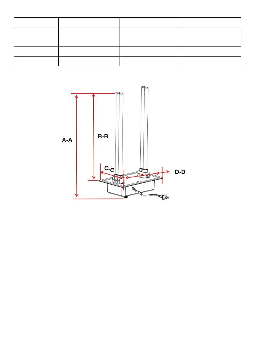
Aproximadamente
411 mm
Aproximadamente
145 mm
Aproximadamente
411 mm
C.C.
156 mm
126 mm
156 nm
DD
258 mm
175 mm
258 mm
Nota: Tenga en cuenta si el espacio interior de la tubería HVAC puede
acomodar el producto.
Instrucciones de instalación
Cómo instalar su sistema de tratamiento de aire por UV
Si su sistema de calefacción/refrigeración (HVAC) está equipado con aire
acondicionado, se recomienda que los rayos UV El sistema de tratamiento
de aire (unidad) se puede montar directamente sobre el serpentín de
enfriamiento. La unidad puede Prevenir el crecimiento de un alto
porcentaje de microorganismos como moho, bacterias y virus en
superficies como serpentines de enfriamiento, bandejas de drenaje y
conductos.
Bekijk gratis de handleiding van Vevor 2006-UV9X2, stel vragen en lees de antwoorden op veelvoorkomende problemen, of gebruik onze assistent om sneller informatie in de handleiding te vinden of uitleg te krijgen over specifieke functies.
Productinformatie
| Merk | Vevor |
| Model | 2006-UV9X2 |
| Categorie | Luchtreiniger |
| Taal | Nederlands |
| Grootte | 15679 MB |







