Vestil VAN-J-AC handleiding
Handleiding
Je bekijkt pagina 4 van 11

Rev. 2/26/2018 VAN-J, MANUAL
Copyright 2017 Vestil Manufacturing Corp. Page 4 of 11
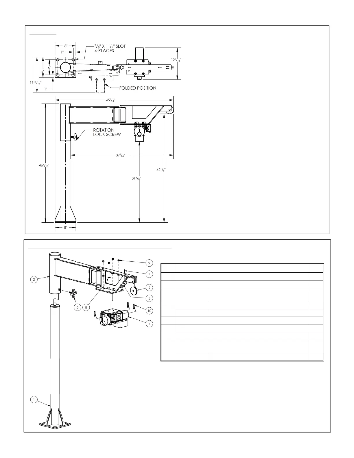
VAN-J-DC
Capacity = 400 lb.
Net weight = 129 lb.
Overall width = 12
5
/
16
”
Usable width = 8”
Overall length = 45
3
/
4
”
Usable length = 39
3
/
4
”
Overall height = 46
1
/
16
”
Usable height = 42
1
/
8
”
Base mounting holes are
7
/
8
” x 1
1
/
4
” slots
Rotates 360°
12V DC-powered winch with handheld pushbutton
controller. Includes
3
/
16
” x 46’ long cable with
hook.
VAN-J-DC Exploded Parts Diagram and Bill of Materials
Item
Part no. Description Qty.
1 28-514-077
Weldment, mast receiver 1
2 28-514-187
Weldment, arm subassembly 1
3 28-112-042
Pin,
1
/
2
”x1
1
/
2
” retaining clevis, zinc
plated
1
4 28-158-003
12V DC winch 1
5 99-027-003
Pulley, cable 1
6 08-025-007
Knob,
3
/
8
”-16UNC x 1
1
/
4
” 1
7 65076
1
/
8
” x 1” cotter pin, zinc plated 1
8 33006 Flat washer, USS, zinc plated,
5
/
16
” 4
9 37021
Nylon insert lock nut, Gr. 2, zinc finish,
5
/
16
”-18
4
10 11059 Hex bolt, gr. A, zinc finish,
5
/
16
”-18x1
1
/
2
”
4
Bekijk gratis de handleiding van Vestil VAN-J-AC, stel vragen en lees de antwoorden op veelvoorkomende problemen, of gebruik onze assistent om sneller informatie in de handleiding te vinden of uitleg te krijgen over specifieke functies.
Productinformatie
Merk | Vestil |
Model | VAN-J-AC |
Categorie | Niet gecategoriseerd |
Taal | Nederlands |
Grootte | 2080 MB |