Vestil ULTT-5448-2-YEL115-1 handleiding
Handleiding
Je bekijkt pagina 7 van 12

7
•
Warning: Care should be taken to identify all potential hazards and comply with applicable safety procedures
before beginning work. Fully lower or secure the platform with the maintenance props, and ensure that all system
pressure and power have been removed, before attempting to work on the electrical or hydraulic systems.
•
Raise the platform and install the maintenance props before beginning inspections or work on the unit.
•
Only qualified individuals trained to understand mechanical devices and their associated electrical and hydraulic
circuits should attempt troubleshooting and repair of this equipment.
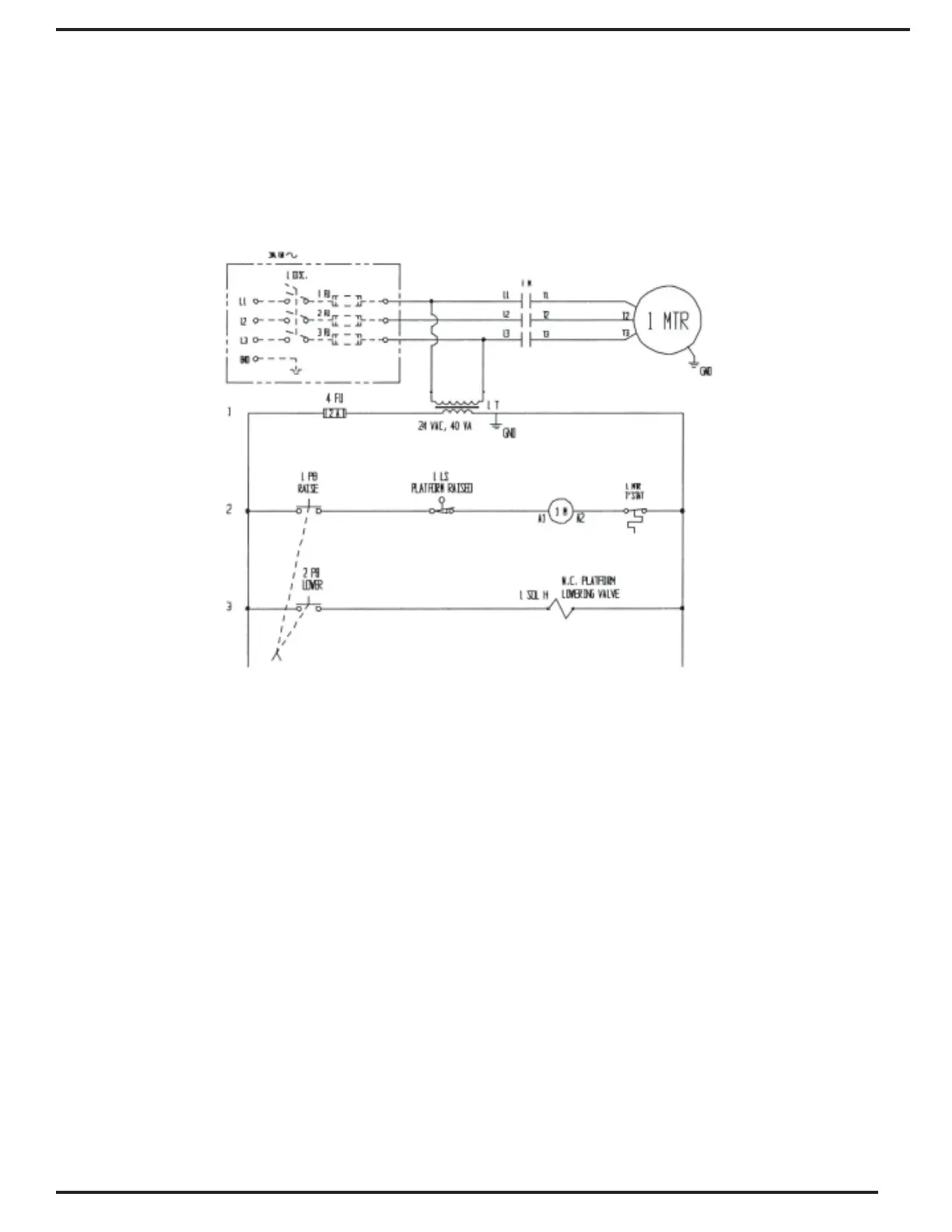
ELECTRICAL DIAGRAM
Bekijk gratis de handleiding van Vestil ULTT-5448-2-YEL115-1, stel vragen en lees de antwoorden op veelvoorkomende problemen, of gebruik onze assistent om sneller informatie in de handleiding te vinden of uitleg te krijgen over specifieke functies.
Productinformatie
Merk | Vestil |
Model | ULTT-5448-2-YEL115-1 |
Categorie | Niet gecategoriseerd |
Taal | Nederlands |
Grootte | 2373 MB |