Vestil SLPT-33 handleiding

6 pagina's
PDF beschikbaar

Handleiding

Je bekijkt pagina 4 van 6
rev. 2/28/2013 Product manual, operation instructions.doc
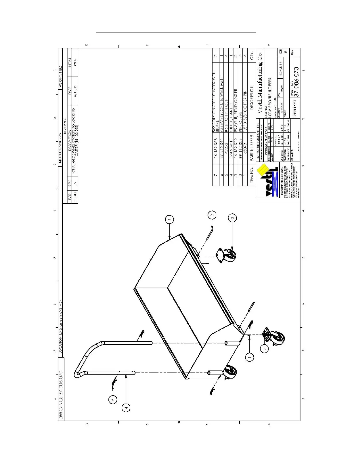
Exploded Parts Diagram and Bill of Materials

Bekijk gratis de handleiding van Vestil SLPT-33, stel vragen en lees de antwoorden op veelvoorkomende problemen, of gebruik onze assistent om sneller informatie in de handleiding te vinden of uitleg te krijgen over specifieke functies.

Productinformatie

MerkVestil
ModelSLPT-33
CategorieNiet gecategoriseerd
TaalNederlands
Grootte1612 MB