Vestil SCTAB-2000-3240-FP handleiding
Handleiding
Je bekijkt pagina 2 van 15

Rev. 4/18/2018 SCTAB-FP, MANUAL
Copyright 2018 Vestil Manufacturing Co. Page 2 of 15
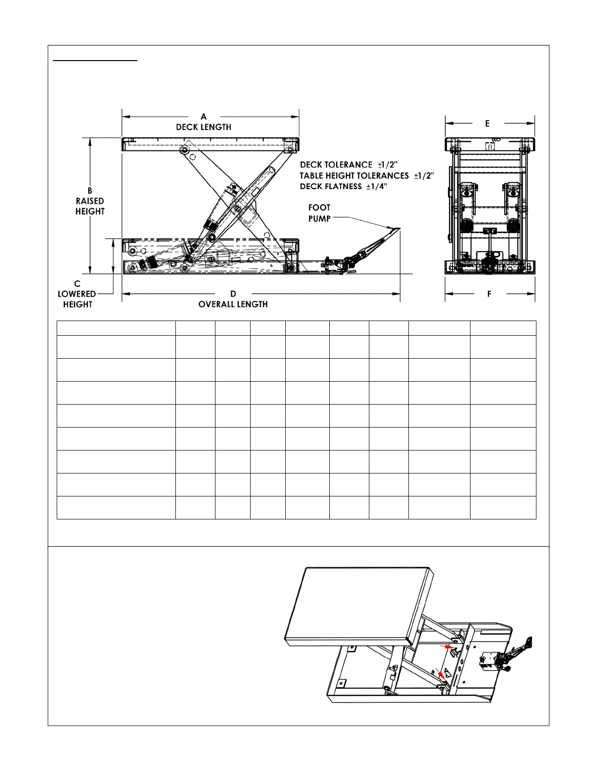
Specifications:
Dimensions for various table configurations as well as net weight and capacity information appear in the
following diagrams and table.
Model A B C D E F Capacity Net weight
SCTAB-500-2033-FP 33
3
/
8
” 28” 6” 56
1
/
16
” 20
3
/
8
” 20
1
/
2
”
500 lb.
227.3 kg
221 lb.
100.5 kg
*SCTABD-750-2040-FP 40
3
/
8
” 35
1
/
4
”
*7” 61
7
/
16
” 20
3
/
8
” 20
1
/
2
”
750 lb.
340.9 kg
249 lb.
113.0 kg
SCTABD-1000-2033-FP 33
3
/
8
” 34” 7” 56
1
/
16
” 20
3
/
8
” 20
1
/
2
”
1,000 lb.
454.5 kg
247 lb.
111.9 kg
SCTAB-1000-2040-FP 40
3
/
8
” 32” 8” 63
1
/
16
” 20
3
/
8
” 20
1
/
2
”
1,000 lb.
454.5 kg
259 lb.
117.5 kg
SCTAB-2000-2040-FP 40
3
/
8
” 32” 8” 63
1
/
16
” 20
3
/
8
” 20
1
/
2
”
2,000 lb.
909.1 kg
272 lb.
123.6 kg
SCTAB-2000-3240-FP 40
3
/
8
” 32” 8” 65” 32
3
/
8
” 32
1
/
2
”
2,000lb.
909.1 kg
337 lb.
153.2 kg
**SCTAB-2000-4242-FP 42
3
/
8
” 32” **8” 64
9
/
16
” 42
3
/
8
” 32
1
/
2
”
2,000 lb.
909.1 kg
358 lb.
162.8 kg
SCTAB-2500-2040-FP 40
3
/
8
” 31
1
/
8
”
8” 63
7
/
16
” 20
3
/
8
” 20
1
/
2
”
2,500 lb.
1136.4 kg
291 lb.
132.0 kg
*In lowered configuration, the deck overhangs the front of the frame by 5
3
/
8
”.
**In lowered configuration, the deck overhangs the front of the frame by 1
5
/
8
”.
Installation:
This table must be anchored to a reinforced
concrete foundation with
1
/
2
” anchor bolts of
adequate length determined by your building
engineer.
FootPumpmodels:Installanchorbolts
throughboltholesA,B,E,&F.
DCModularPowerUnitmodels:install
anchorboltsatpointsA,B,C,&D.
Periodically inspect the anchor points. If bolts
have loosened, tighten them. Examine the
concrete around the anchor points for damage. If
the unit can no longer be solidly anchored at its
current location, install the table in a new location.
F
E
A
B
C
D
Bekijk gratis de handleiding van Vestil SCTAB-2000-3240-FP, stel vragen en lees de antwoorden op veelvoorkomende problemen, of gebruik onze assistent om sneller informatie in de handleiding te vinden of uitleg te krijgen over specifieke functies.
Productinformatie
Merk | Vestil |
Model | SCTAB-2000-3240-FP |
Categorie | Niet gecategoriseerd |
Taal | Nederlands |
Grootte | 4446 MB |