Vestil RR-66-50 handleiding
Handleiding
Je bekijkt pagina 7 van 11

TABLE OF CONTENTS 5/13/2022 RR MANUAL
TABLE OF CONTENTS Copyright 2022 Vestil Manufacturing Page 7 of 11
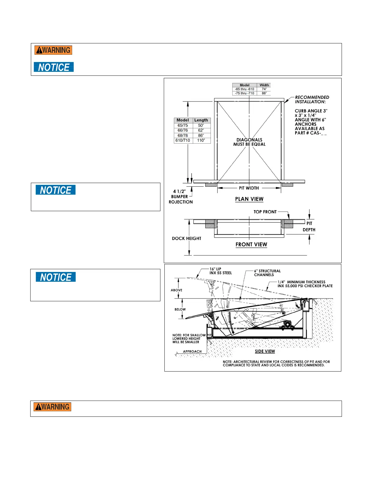
INSTALLING THE DOCK LEVELER
Never work under a dock leveler unless the maintenance prop is installed in its socket.
The Dock Leveler must be level to function properly.
Do not modify the dock leveler to fit in a pit.
1. Measure the pit’s dimensions.
2. Using steel shims, position shims under
the frame to prevent frame distortions and
flex so the Dock Leveler’s final, resting
position meets the following:
• The Dock Leveler should be level.
• The Dock Leveler should be against
the rear pit curb angle.
• The platform should be centered from
side to side within the pit.
• The Dock Leveler’s rear channel must
be flush with the rear curb angle.
Do not allow the dock
leveler to be above the
pit’s rear curb angle.
3. With the shims in position, skip weld the
rear hinge channel to the rear curb angel,
4 inches every 8 inches.
4. Grind welds smooth.
Operating the Dock Leveler
Do not leave any cargo
or equipment on the
Dock Leveler deck at
any time.
Before Use
1) When the truck is against the Dock
Lever’s bumpers, chock the truck’s wheels
on both sides.
2) Verify the truck’s cargo area has ample
room to accept the Dock Leveler lip. The
lip will require about twelve inches (12”)
beyond the bumper for the standard
sixteen inch (16”) lip.
3) If the cargo area is not sufficiently clear, clear the area.
4) Verify the lip is in the vertical position and securely behind the lip keepers.
People and equipment must be clear of the leveler
. The deck will rise and the lip will
automatically extend into the trailer.
5) If the deck is below dock height, release the pull & raise the deck a few inches above the dock floor.
6) Walk on the deck to lower it until the entire lip is setting on top of the trailer’s floor.
NOTE:
Pit bottom
should slope
¼ in. from
back to front.
The rear wall
(pit depth)
should be
23
3
/
4
in. Front
face pit
depth should
be 24”.
Bekijk gratis de handleiding van Vestil RR-66-50, stel vragen en lees de antwoorden op veelvoorkomende problemen, of gebruik onze assistent om sneller informatie in de handleiding te vinden of uitleg te krijgen over specifieke functies.
Productinformatie
Merk | Vestil |
Model | RR-66-50 |
Categorie | Niet gecategoriseerd |
Taal | Nederlands |
Grootte | 3144 MB |