Vestil PLC-P-FM handleiding
Handleiding
Je bekijkt pagina 4 van 7

Table of Contents Rev. 11/11/2021 PLC-P-FM, MANUAL
Table of Contents Copyright 2021 Vestil Manufacturing Corp. 4 of 7
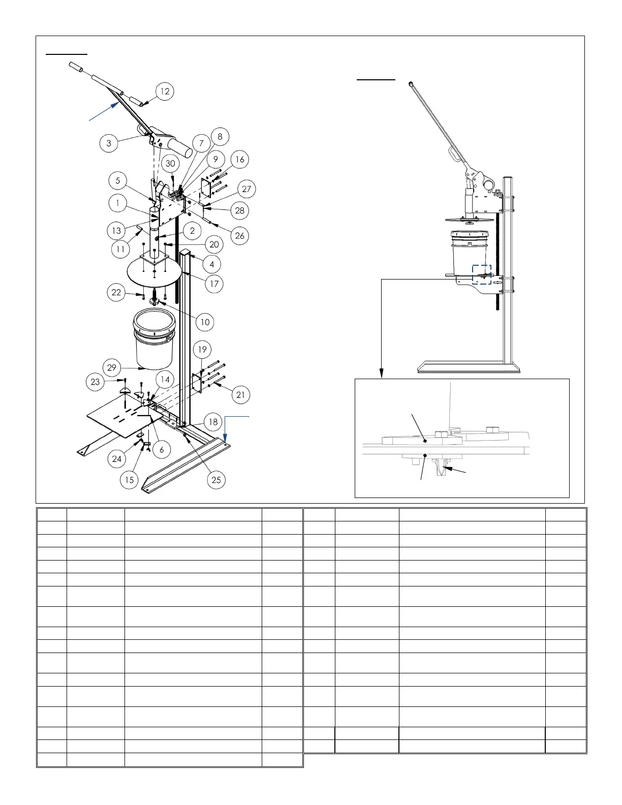
FIG. 1A: PLC-P-FM Exploded View & Bill of Materials
Item
Part no.
Description
Quantity
Item
Part no.
Description
Quantity
1
40-514-072
Weldment, frame, press head
1
17
40-014-102
Frame, platen
1
2 40-514-071 Weldment, frame, arbor plunger 1 18 40-016-102 Bracket, lift rod 1
3
40-542-001
Weldment, lever
1
19
40-014-109
Frame, arm flange, plate
2
4
40-514-070
Weldment, floor frame
1
20
36106
3
/
8
in. – 16 zinc-plated hex nut
4
5
40-541-002
Subassembly, piston plunger
1
21
11119
3
/
8
in. – 16 UNC x 4in. HHCS bolt
8
6 40-514-068 Weldment, pail support 1 22 11107
3
/
8
in. – 16 x 1
1
/
4
in. HHCS #2 zinc-
plated bolt
4
7 40-026-003 Shaft, threaded, height adjustment
1 23 11005
1
/
4
in. – 20 UNC x 1in. HHCS #2
zinc-plated bolt
3
8 40-145-007 Threaded rod, drive nut 1 24 37746
5
/
16
in. – 18 wing nut 3
9
16-110-001
1
/
2
in. inner diameter thrust bearing
2
25
37623
3
/
8
in. – 16 plain square nut
8
10 40-541-001
Subassembly, plunger, burper,
adjustable
1 26 28-112-029
3
/
8
in. x 3in. zinc-plated retaining
clevis pin
1
11
40-112-020
Pin, platen connecting pin
1
27
21-112-003
Clevis pin
1
12 13-025-023
1
1
/
8
in. inner diameter red handle
grip
2 28 65077
1
/
8
in. x 1
1
/
4
in. zinc-plated cotter pin 2
13 01-111-013
1
/
2
in. inner diameter x
1
/
2
in. long
DU type bearing sleeve
2 29
30-001-062-00A
5 gallon pail (not included) 1
14
40-537-009
Weldment, pail stop
3
30
64133
3
/
16
in. x 1in. spring pin (FN64133)
4
15
40-016-101
Bracket, nut plate
3
31
64135
3
/
16
in. x 1
1
/
4
in. roll pin (FN64135)
1
16 33622
3
/
8
in. zinc-plated lock washer 8
FIG. 1B: Adjust pail stops
Pail stop (14)
Nut plate
bracket (15)
Wing nut (14)
Handle
Frame has an
anchor bolt hole in
each corner (total of
4). Fasten frame to
floor with
1
/
2
”
anchor bolts of
appropriate length
(selected by your
building engineer).
Bekijk gratis de handleiding van Vestil PLC-P-FM, stel vragen en lees de antwoorden op veelvoorkomende problemen, of gebruik onze assistent om sneller informatie in de handleiding te vinden of uitleg te krijgen over specifieke functies.
Productinformatie
Merk | Vestil |
Model | PLC-P-FM |
Categorie | Niet gecategoriseerd |
Taal | Nederlands |
Grootte | 1971 MB |