Vestil PEL-88A-D3 handleiding
Handleiding
Je bekijkt pagina 3 van 17

Table of Contents Rev. 10/28/2020 PEL MANUAL
Table of Contents Copyright 2020 Vestil Manufacturing Corp. Page 3 of 17
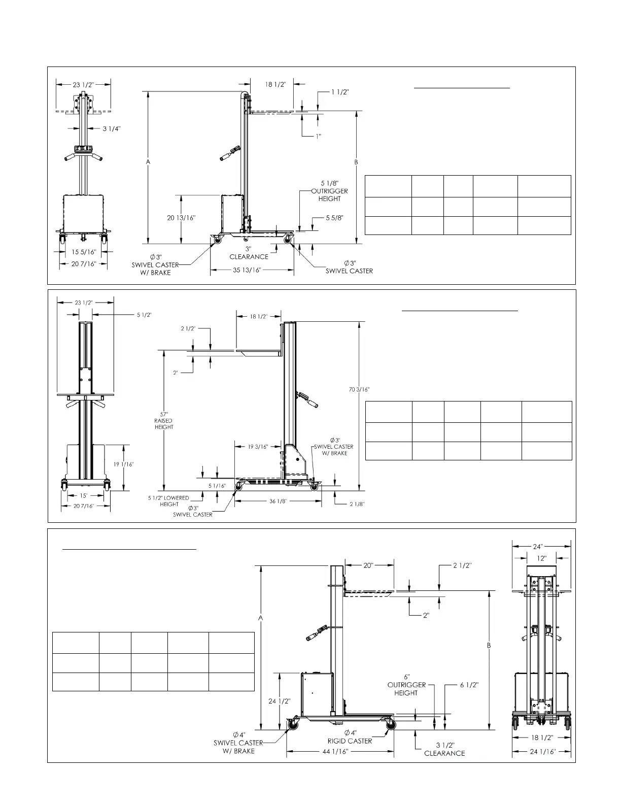
SPECIFICATIONS
Dimensions and other specifications appear in the diagrams and table below.
Model A B
Net
Weight
Capacity
PEL-88 65
5
/
16
”
57” 172 lb. 175 lb.
PEL-100 80
5
/
16
”
72” 179 lb. 125 lb.
Model A B
Net
Weight
Capacity
PEL-88A 57” 70
3
/
16
” 144 lb. 175 lb.
PEL-100A
72” 85
3
/
16
” 157 lb. 125 lb.
Model A B
Net
Weight
Capacity
PEL-400-57
67
1
/
4
” 57” 373 lb. 400 lb.
PEL-400-72
82
1
/
4
” 72” 392 lb. 400 lb.
PEL-400 -57 and PEL-400-72
PEL-88-A and PEL-100-A
PEL-88 and PEL-100
NOTE: 2.2 lb. = 1 kg
1” = 2.54cm
NOTE: 2.2 lb. = 1 kg
1” = 2.54cm
NOTE: 2.2 lb. = 1 kg
1” = 2.54cm
Bekijk gratis de handleiding van Vestil PEL-88A-D3, stel vragen en lees de antwoorden op veelvoorkomende problemen, of gebruik onze assistent om sneller informatie in de handleiding te vinden of uitleg te krijgen over specifieke functies.
Productinformatie
Merk | Vestil |
Model | PEL-88A-D3 |
Categorie | Niet gecategoriseerd |
Taal | Nederlands |
Grootte | 4667 MB |