Vestil LAD-MM-10-P handleiding
Handleiding
Je bekijkt pagina 4 van 13

Table of Contents Rev. 12.6.2018 LAD-MM, MANUAL
Table of Contents C
opyright 2017 Vestil Manufacturing Co. Page 4 of 13
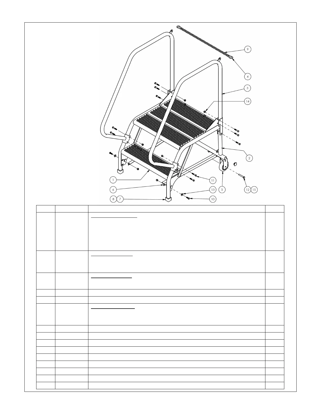
Item
Part no.
Description
Qty.
1
44-647-053
44-647-054
44-647-053
44-647-052
44-647-006
44-647-010
Weldment, step frame:
LAD-MM-2-P
LAD-MM-2-G
LAD-MM-3-P
LAD-MM-3-G
LAD-MM-4-P
LAD-MM-4-G
1
1
1
1
1
1
2
44-514-299
44-514-300
44-514-301
Weldment, back leg:
2-step, 26” step: LAD-MM-2-P & LAD-MM-2-G
3-step, 26” step: LAD-MM-3-P & LAD-MM-3-G
4-step, 26” step: LAD-MM-4-P & LAD-MM-4-G
1
1
1
3 44-524-059
44-524-038
Weldment, handrail:
LAD-MM-2-P; LAD-MM-2-G; LAD-MM-3-P; & LAM-MM-3-G
LAD-MM-4-P & LAD-MM-4-G
2
2
4
08-145-008
Snap hook,
1
/
4
”
2
5
16-132-009
Wheel, PP-4/1.25-W
2
6
44-014-331
44-014-332
44-014-233
Frame, base support:
LAD-MM-2-P & LAD-MM-2-G
LAD-MM-3-P & LAM-MM-3-G
LAD-MM-4-P & LAD-MM-4-G
2
2
2
7
99-024-027
Square cap, 1” x 1”, 60 Duro.
2
8
99-025-025
1” plastic plug
4
9
99-145-031
3
/
16
” chain 24”
1
10
11055
Hex bolt, gr, A, zinc plated,
5
/
16
”-18 x 1”
4
11
11060
Hex bolt, HHCS,
5
/
16
”-18UNC x 1
3
/
4
”
10
12
11113
Hex bolt, gr. A, plain finish,
3
/
8
”-16 x 2
1
/
2
”
2
13
33006
Flat washer, zinc plated, USS,
5
/
16
”
4
14
37021
Nylon insert lock nut, gr. 2, zinc finish,
5
/
16
”-18
14
15
37024
Nylon insert lock nut, gr. 2, zinc finish,
3
/
8
”-16
2
Exploded View and Bill of Materials:
LAD-MM-2-P & LAD-MM-2-G
LAD-MM-3-P & LAD-MM-3-G
LAD-MM-4-P & LAD-MM-4-G
*NOTE: Diagram shows LAD-MM-2-P.
Bekijk gratis de handleiding van Vestil LAD-MM-10-P, stel vragen en lees de antwoorden op veelvoorkomende problemen, of gebruik onze assistent om sneller informatie in de handleiding te vinden of uitleg te krijgen over specifieke functies.
Productinformatie
Merk | Vestil |
Model | LAD-MM-10-P |
Categorie | Niet gecategoriseerd |
Taal | Nederlands |
Grootte | 3732 MB |