Vestil HDP-6-42 handleiding
Handleiding
Je bekijkt pagina 3 van 7

Table of Contents Rev. 0519 HDP MANUAL
Table of Contents Copyright 2019 Vestil Manufacturing Corp. Page 3 of 7
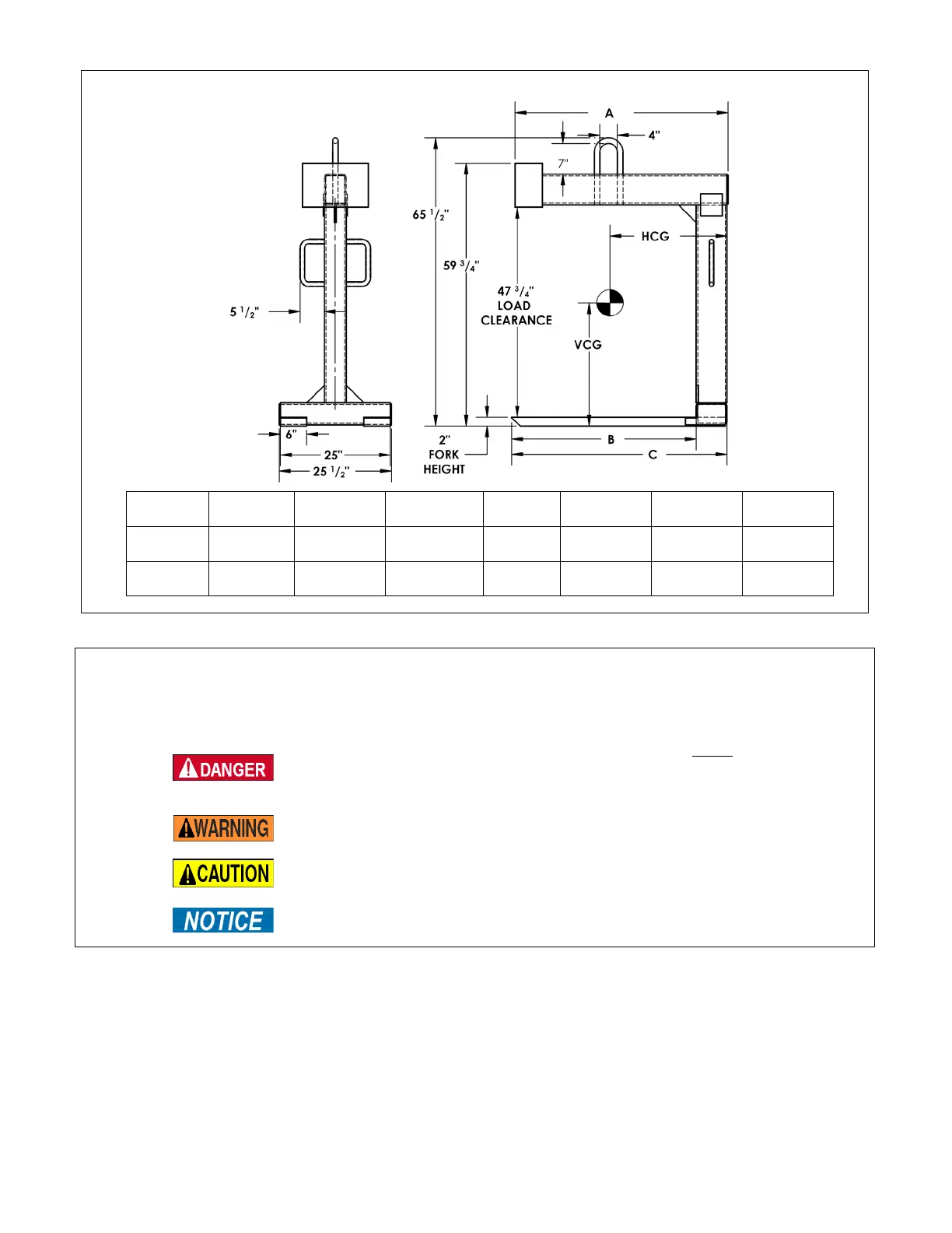
SPECIFICATIONS (CONTINUED)
HDP-6-42
48
1
/
2
”
123.2 cm
42”
106.7 cm
49”
124.5 cm
26
5
/
8
”
67.6 cm
28”
71.1 cm
6,000 lb.
2727.3 kg
776 lb.
352.7 kg
HDP-6-48
57
1
/
2
”
146.1 cm
48”
121.9 cm
55”
139.7 cm
30
1
/
2
”
77.5 cm
27
3
/
8
”
69.5 cm
6,000 lb.
2727.3 kg
916 lb.
416.4 kg
HDP-6-54
58
1
/
2
”
148.6 cm
54”
137.2 cm
61”
154.9 cm
32”
81.3 cm
26
3
/
8
”
67.0 cm
6,000 lb.
2727.3 kg
960 lb.
436.4 kg
SIGNAL WORDS
This manual classifies personal injury risks and situations that might cause property damage with
signal words. Signal words indicate the seriousness of injuries that might result if a particular act does,
or does not, occur.
Identifies a hazardous situation which, if not avoided, WILL result
in DEATH or SERIOUS INJURY. Use of this signal word is
limited to the most extreme situations.
Identifies a hazardous situation which, if not avoided, COULD
result in DEATH or SERIOUS INJURY.
Indicates a hazardous situation which, if not avoided, COULD
result in MINOR or MODERATE injury.
Identifies practices likely to result in product/property damage,
such as operation that might damage the product.
Bekijk gratis de handleiding van Vestil HDP-6-42, stel vragen en lees de antwoorden op veelvoorkomende problemen, of gebruik onze assistent om sneller informatie in de handleiding te vinden of uitleg te krijgen over specifieke functies.
Productinformatie
Merk | Vestil |
Model | HDP-6-42 |
Categorie | Niet gecategoriseerd |
Taal | Nederlands |
Grootte | 1515 MB |