Vestil HDD-60-10-P-SSC handleiding
Handleiding
Je bekijkt pagina 3 van 25

Table of Contents 5/14/2020 HDD, MANUAL
Table of Contents Copyright 2019 Vestil Manufacturing Co. 3 of 25
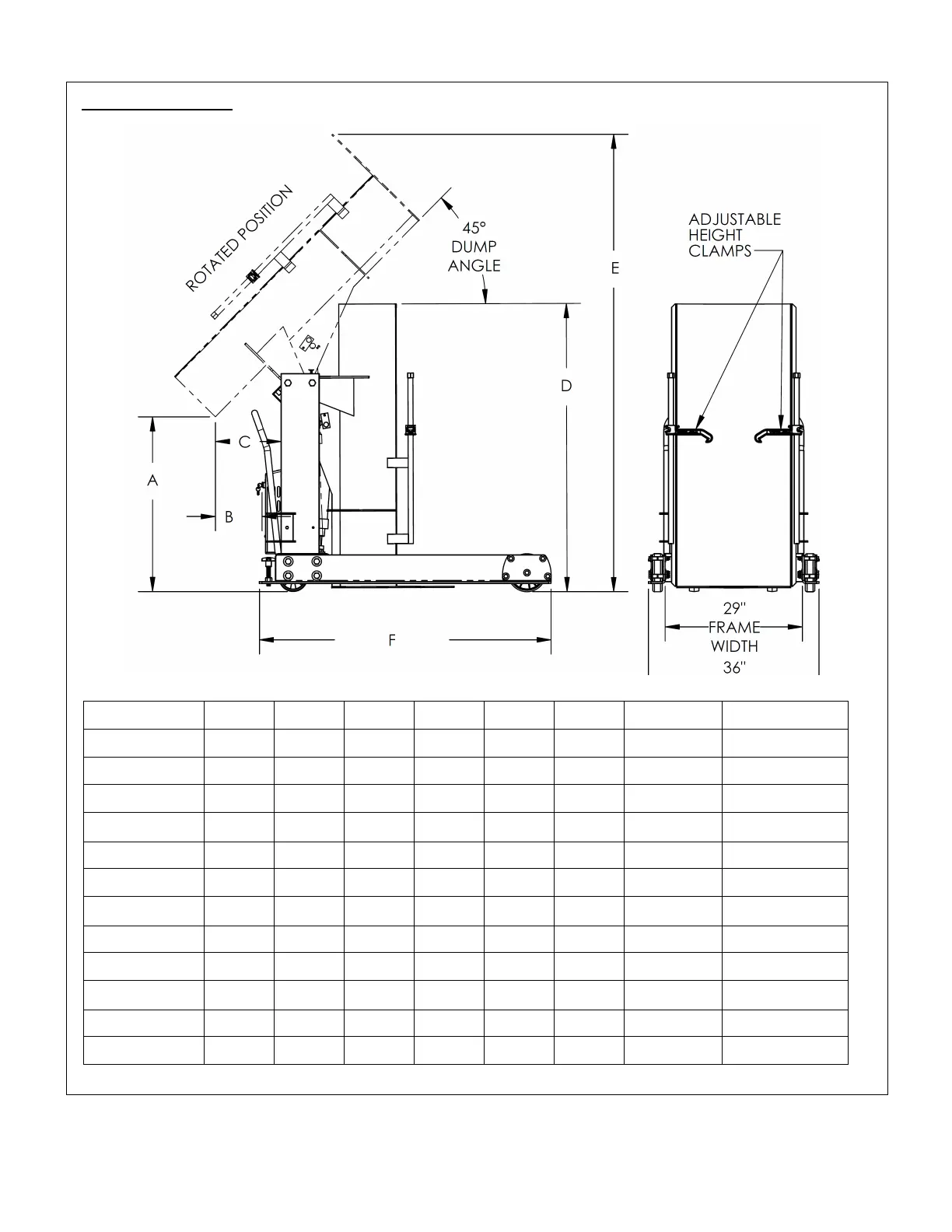
Model A B C D E F Capacity Net weight
HDD-36-7-P 36” 9
3
/
4
” 14” 63
3
/
4
” 96” 61
1
/
2”
750 lb. 788 lb.
HDD-36-10-P 36” 9
3
/
4
” 14” 63
3
/
4
” 96” 61
1
/
2”
1,000 lb. 763 lb.
HDD-36-15-P 36” 9
3
/
4
” 14” 63
3
/
4
” 96” 61
1
/
2”
1,500 lb. 776 lb.
HDD-48-7-P 48” 9
3
/
4
” 14” 72
1
/
2
” 116
3
/
4
” 71
1
/
2”
750 lb. 864 lb.
HDD-48-10-P 48” 9
3
/
4
” 14” 72
1
/
2
” 116
3
/
4
” 71
1
/
2”
1,000 lb. 862 lb.
HDD-48-15-P 48” 9
3
/
4
” 14” 72
1
/
2
” 116
3
/
4
” 71
1
/
2”
1,500 lb. 880 lb.
HDD-60-7-P 60” 9
3
/
4
” 14” 84
1
/
2
” 137
1
/
4
” 80” 750 lb. 1,019 lb.
HDD-60-10-P 60” 9
3
/
4
” 14” 84
1
/
2
” 137
1
/
4
” 80” 1,000 lb. 1,042 lb.
HDD-60-15-P 60” 9
3
/
4
” 14” 84
1
/
2
” 137
1
/
4
” 80” 1,500 lb. 1,026 lb.
HDD-72-7-P 72” 9
1
/
4
” 13
1
/
2
” 96” 157
1
/
2
” 92” 750 lb. 1,034 lb.
HDD-72-10-P 72” 9
1
/
4
” 13
1
/
2
” 96” 157
1
/
2
” 92” 1,000 lb. 1,100 lb.
HDD-72-15-P 72” 9
1
/
4
” 13
1
/
2
” 96” 157
1
/
2
” 92” 1,500 lb. 1,115 lb.
Portable HDD models
Bekijk gratis de handleiding van Vestil HDD-60-10-P-SSC, stel vragen en lees de antwoorden op veelvoorkomende problemen, of gebruik onze assistent om sneller informatie in de handleiding te vinden of uitleg te krijgen over specifieke functies.
Productinformatie
Merk | Vestil |
Model | HDD-60-10-P-SSC |
Categorie | Niet gecategoriseerd |
Taal | Nederlands |
Grootte | 6250 MB |